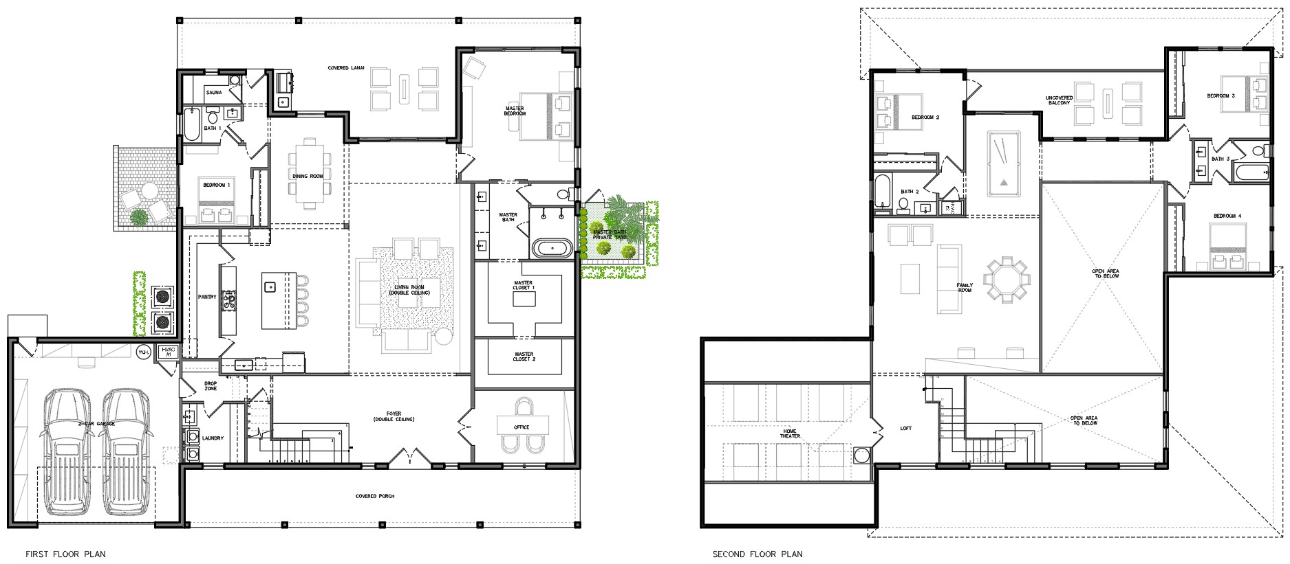
convert this floor plan into a architectural isometric 3d view of a full house show the space from an elevated angle with furniture walls and details visible 2 story house foyer and living room with double ceiling where you can see them from second floor front and back porches roof are dark grey metal with wood columns and beams home theater above garage with sloped ceiling from the roof use the same furniture as shows on the plan do not change the orientation of the floorplan