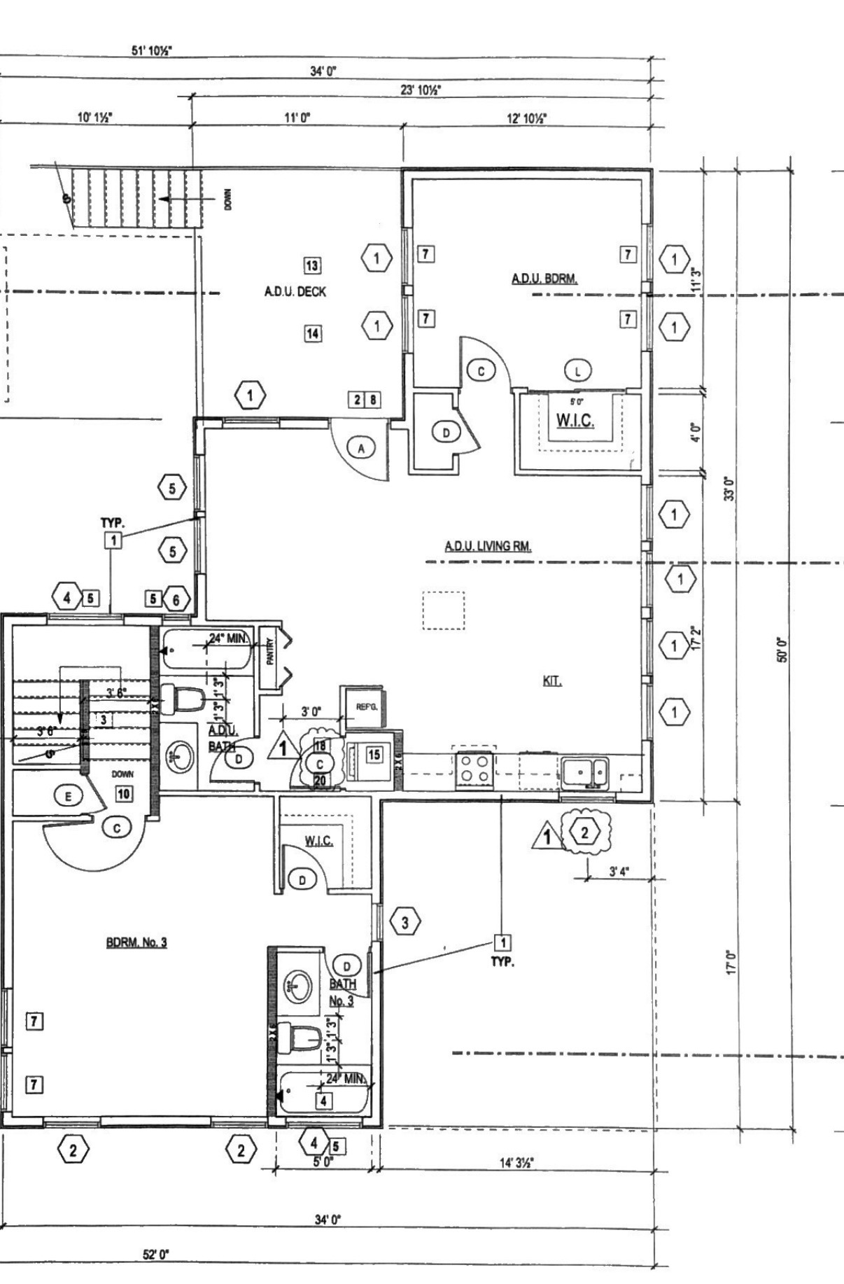
convert only the adu portion of this floor plan into a realistic furnished 3d render ignore and exclude all main house or upstairs areas render only the adu footprint shown in the plan keep all adu walls doors windows and layout exactly as drawn style simple modern farmhouse adu light neutral palette warm white walls light oak wood flooring white shaker cabinets quartz countertops matte black hardware and fixtures living area compact sofa small coffee table wall mounted tv minimal decor kitchen small modern farmhouse kitchen simple cabinetry functional layout bedroom queen bed neutral bedding minimal nightstands bathroom light tile black fixtures simple vanity furniture scaled appropriately for a small adu bright natural daylight realistic residential materials cozy and uncluttered architecture