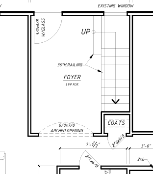
make the dowstairs foyer a 3d rendering with shiplap walls a gold library sconce on the wall opposite the stairwell with 48 x36 art piece the staircase to have a wood handrail with iron posts