archsynth
Sign Up
Open main menu
Image to 3d model
Compare
Testimonials
Contact us
Log in
→
Signup
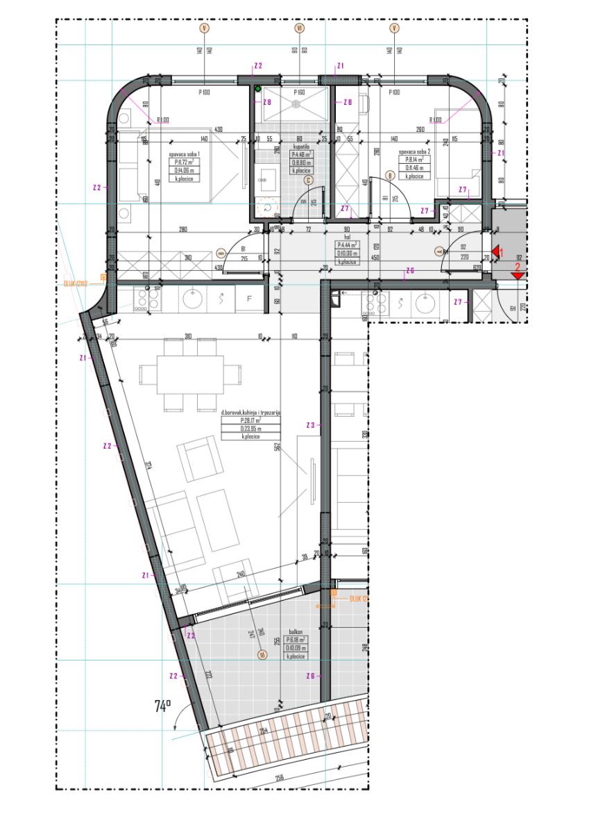
Archsynth generation
Input image
Copy Prompt
convert this 2d plan to 3d plan
Maintain Colors (v2)
strength 75
seed 10
Start Creating Renders Now
Related Posts
Start Creating Renders Now
View more