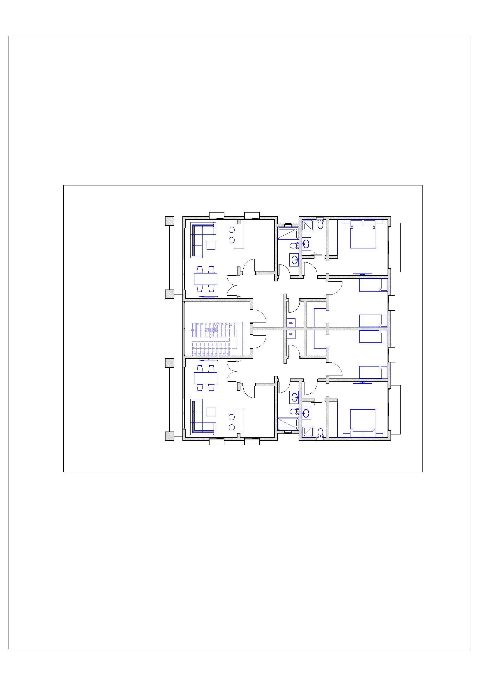
convert this floor plan into a realistic isometric 3d view of a full house show the space from an elevated angle with furniture walls and details visible render a detailed architectural floor plan with a modern aesthetic use soft neutral tones for the walls and flooring like light gray and cream to create a clean canvas highlight furniture in warm wood colors and accentuate with blue and pastel accents for d cor items add ambient lighting with a golden hue to create a cozy atmosphere include lush green indoor plants for a touch of nature and freshness the overall mood is inviting contemporary and stylish use the same furniture as shows on the plan do not change the orientation of the floorplan