archsynth
Sign Up
Open main menu
Image to 3d model
Compare
Testimonials
Contact us
Log in
→
Signup
Archsynth generation
Input image
Copy Prompt
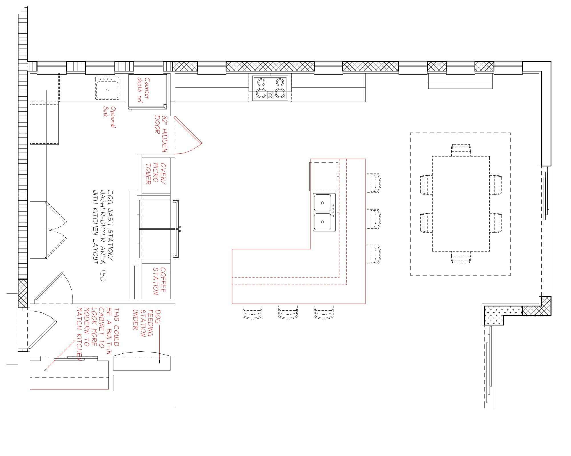
show this kitchen layout with a level island that is l shaped with the sink as shown colors to be light tones with a marble floor florida interior design windows are above upper cabinets
Elevations
strength 75
seed 10
Start Creating Renders Now
Related Posts
Start Creating Renders Now
View more