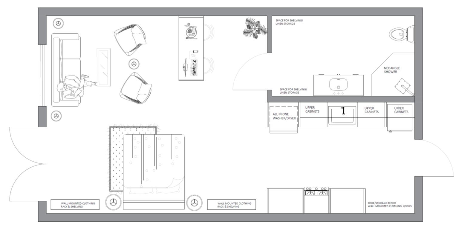
convert this floor plan into a realistic isometric 3d view of a full house show the space from an elevated angle with furniture walls and details visible keep this layout but switch shower to corner beside vanity remove vanity from across the toilet use the same furniture as shows on the plan do not change the orientation of the floorplan