archsynth
Sign Up
Open main menu
Image to 3d model
Compare
Testimonials
Contact us
Log in
→
Signup
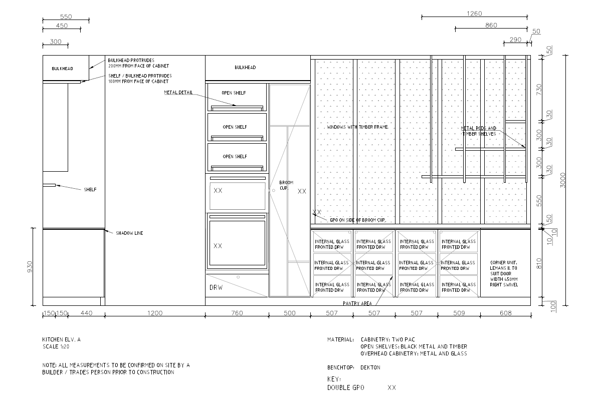
Archsynth generation
Input image
Copy Prompt
make the line detail thicker
Maintain Colors (v2)
strength 75
seed 10
Start Creating Renders Now
Related Posts
Start Creating Renders Now
View more