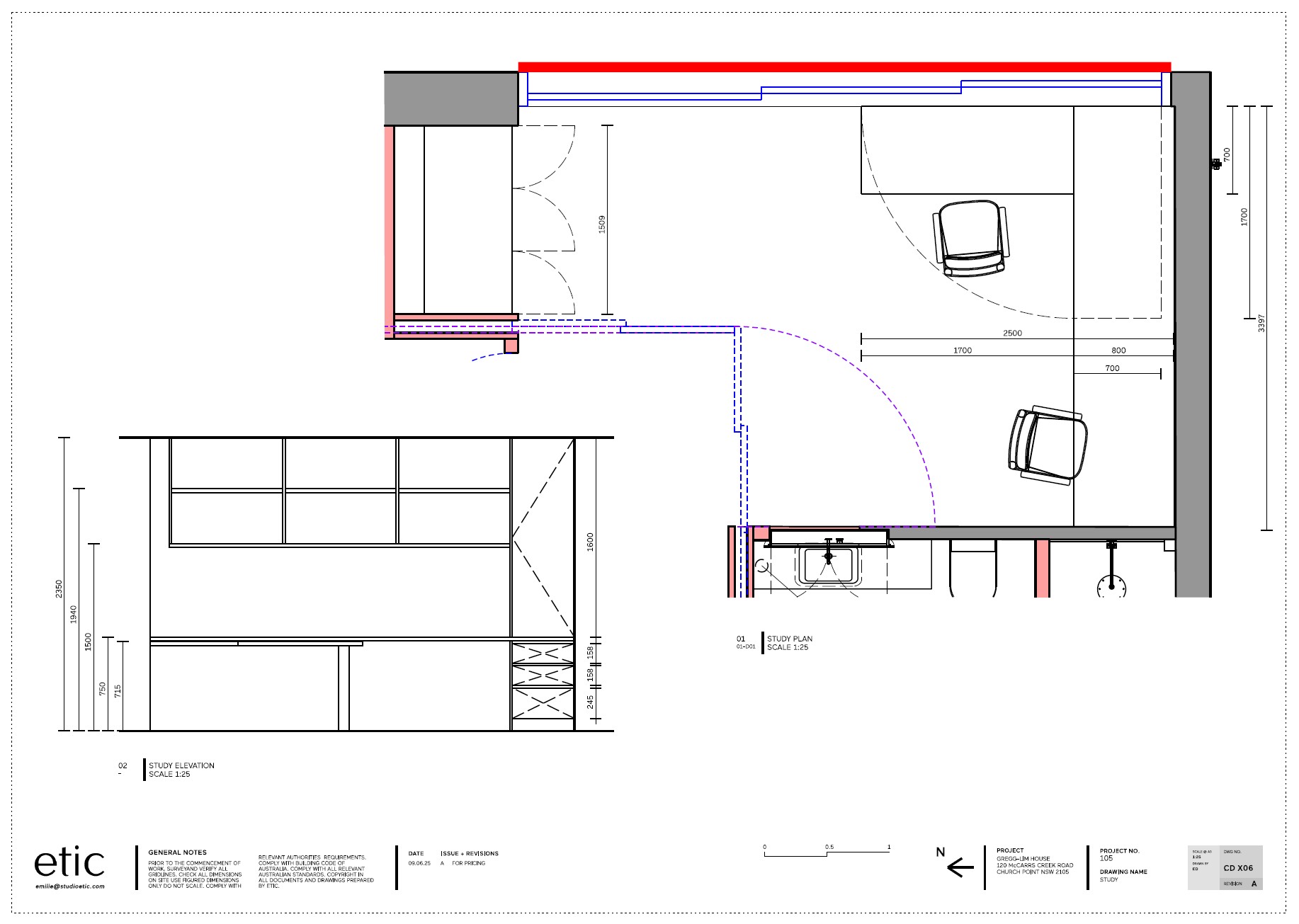
dark walnut to cupboard faces floor to be concrete walls in walnut v groove lining boards no lighting this needs to read like a 2d drawings elevation