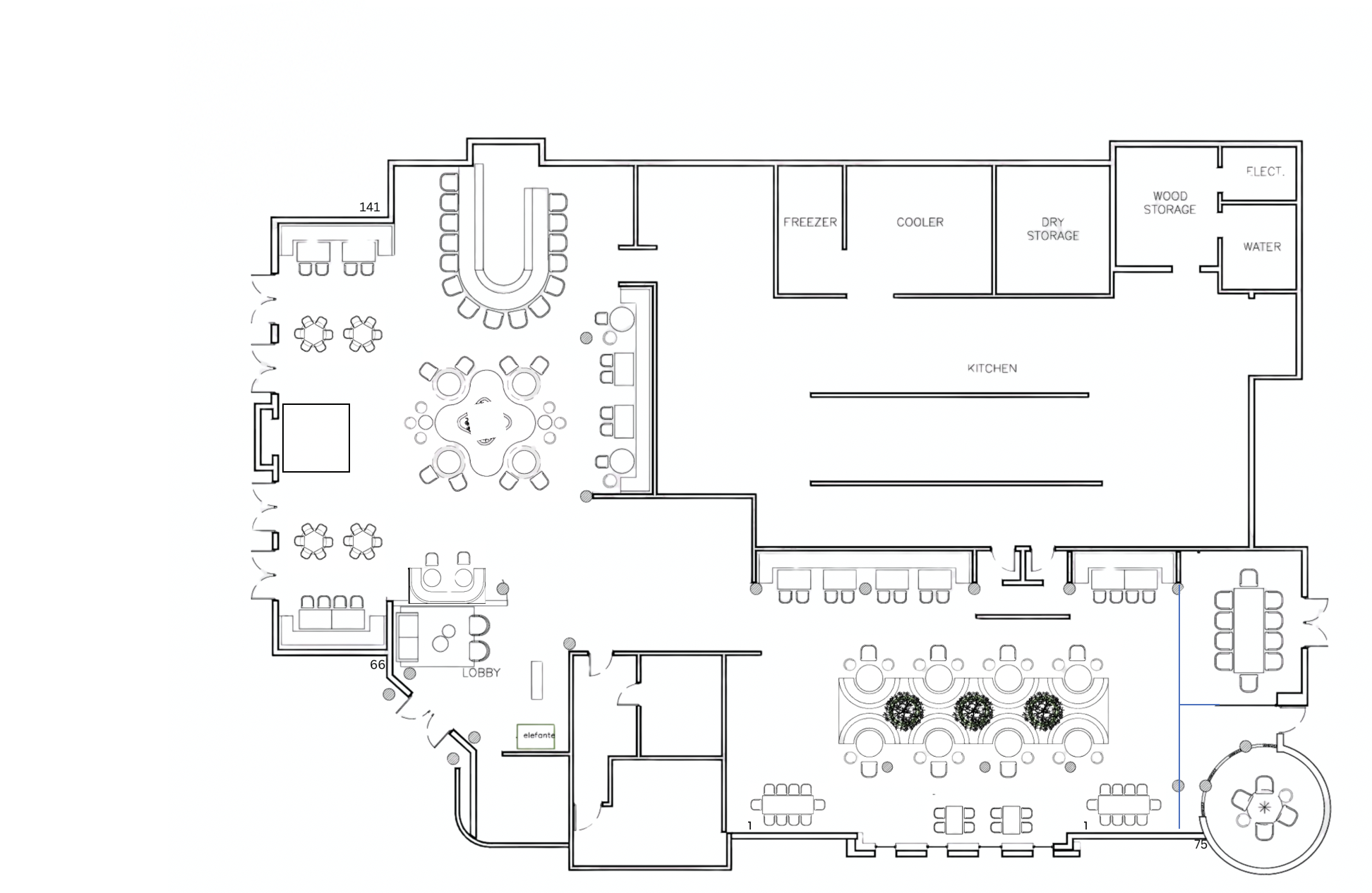
1 design direction based on your plans inspirations core design language what you re already doing right palette black marble brushed gold warm amber lighting mood upscale intimate nightlife luxury materials high gloss black marble flooring key visual anchor vertical metal slats partitions backlit stone glass velvet seating burgundy emerald tan space planning suggestions from your layout 1 entry lobby bottom left of plan make this a wow arrival moment add feature wall with ivory logo backlit sculptural host stand black stone gold trim mirror panels to amplify lighting this should feel like a luxury hotel lobby not a restaurant entrance 2 main dining center right large space use your inspiration ceiling geometric lighting grid greenery break space into zones booth seating along walls loose tables in center semi private clusters with partitions tip avoid making it feel like one big hall layer it 3 bar area bottom right curved section this is your money maker focal point go for backlit liquor wall arched niches like your images hanging glass pendants clustered varied heights curved bar with vertical fluting led underglow add 2 seating types bar stools lounge seating behind 4 private dining room top right room make it darker more exclusive statement chandelier textured walls fabric or stone custom table centerpiece 5 kitchen flow top large area looks efficient already clear separation of freezer cooler dry storage just ensure direct service routes to bar dining