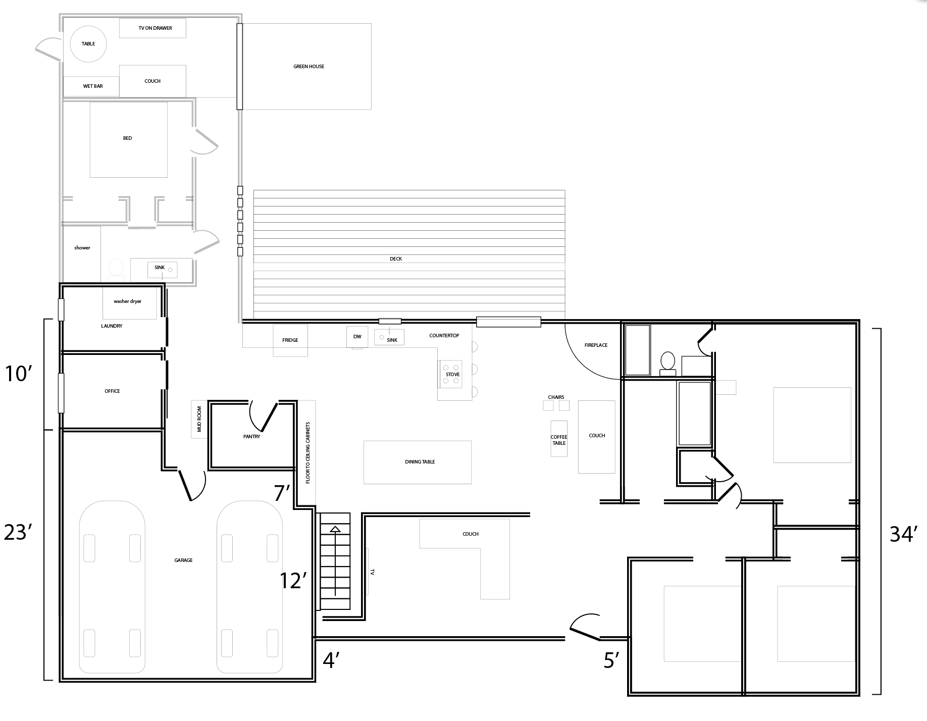
convert this floor plan into a realistic isometric 3d view of a full house show the space from an elevated angle with furniture walls and details visible furniture style is classical chesterfield couch with modern kitchen counters should be modern light wood flooring is also light hardwood that runs parallel with the kitchen use the same furniture as shows on the plan do not change the orientation of the floorplan