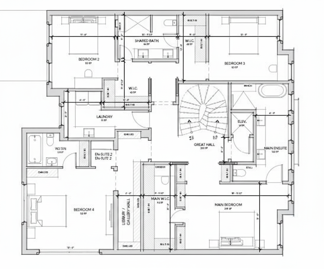
make a floor plan