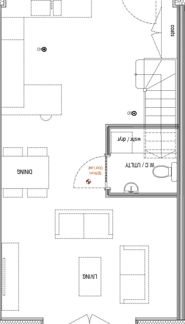
use the drawing to create the layou of the room