archsynth
Sign Up
Open main menu
Image to 3d model
Compare
Testimonials
Contact us
Log in
→
Signup
Archsynth generation
Input image
Copy Prompt
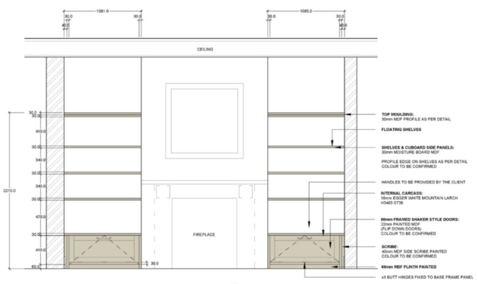
fireplace with shelving units either side architecture
by Words
strength 75
seed 7342
Start Creating Renders Now
Related Posts
Start Creating Renders Now
View more