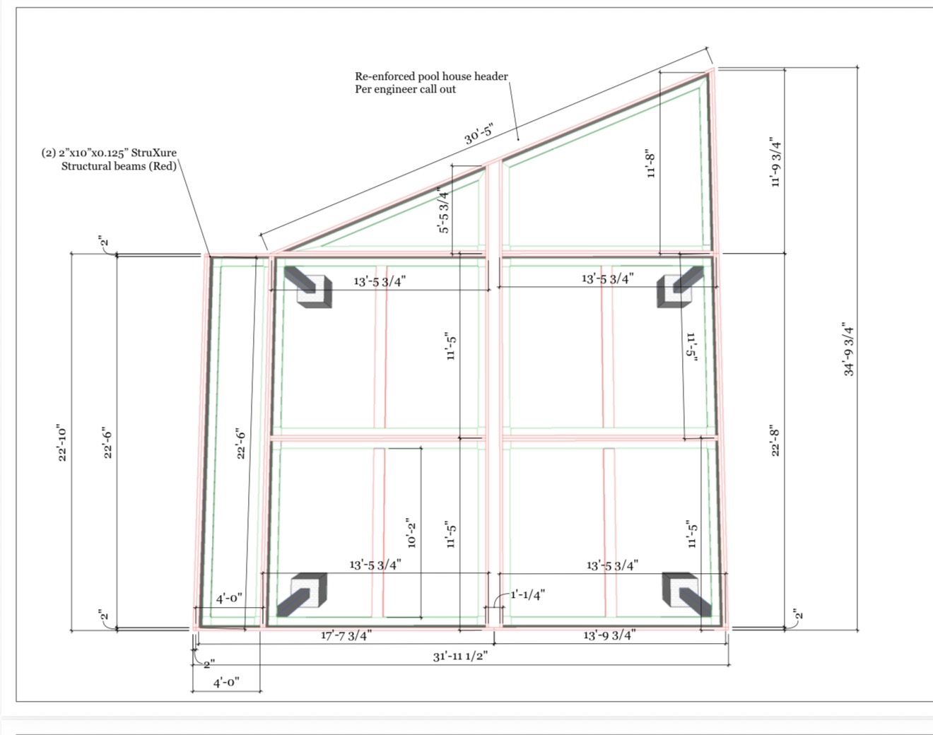
create a top down architectural plan view using the uploaded pergola structure and dimension reference the pergola must reflect its true full footprint approximately 32 feet wide approximately 22 feet deep includes the full right side angled extension as shown in the dimension drawing do not compress or reduce the pergola size the structure should feel expansive and large scale maintain correct structural spacing between pergola beams and columns inside the pergola left side against pool house wall a linear outdoor kitchen approximately 13 14 feet long include pizza oven grill sink prep space and refrigeration kitchen should occupy only a portion of the full width leaving significant open space center a rectangular island 8 10 feet long placed parallel to the kitchen maintain 42 48 inches of space between kitchen and island right side leave open space to show full scale of pergola do not fill this area with furniture important the island and kitchen must feel proportionally smaller within the larger pergola footprint emphasize open negative space to communicate scale camera top down view but slightly elevated not perfectly flat to show depth wide framing to include entire pergola footprint edge to edge style minimal architectural rendering light neutral materials clean concrete flooring no landscaping no pool no furniture focus on accurate scale spacing and proportion above all else