archsynth
Sign Up
Open main menu
Image to 3d model
Compare
Testimonials
Contact us
Log in
→
Signup
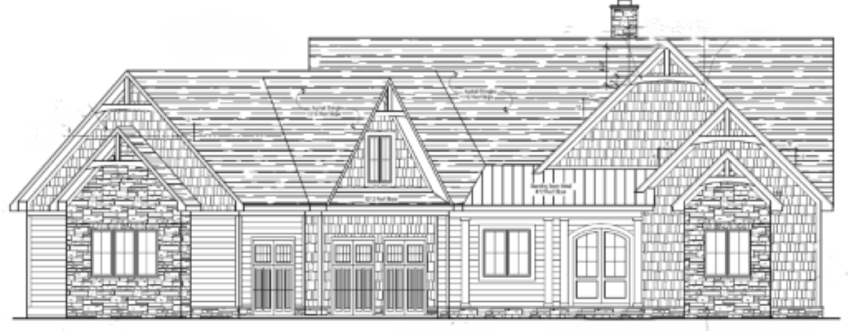
Archsynth generation
Input image
Copy Prompt
exterior shot stone dutch quality oak blend limestone windows black trim ppg mountain gray siding ppg stonehenge gray garage and front door dark walnut roof black architecture
by Style
strength 75
seed 1513
Start Creating Renders Now
Related Posts
Start Creating Renders Now
View more