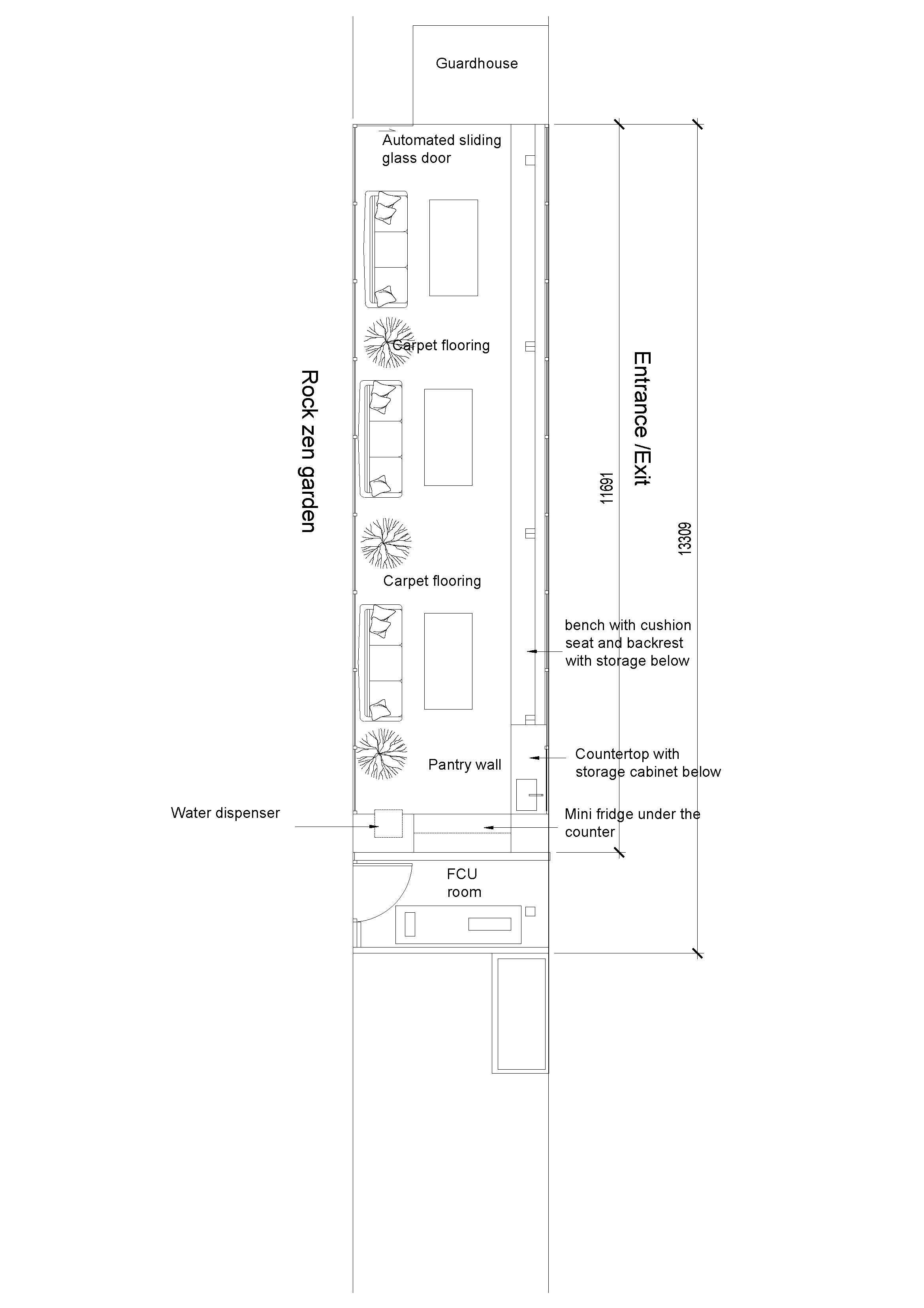
apply carpet flooring to all interior floor areas add realistic landscape treatment around the exterior perimeter of the plan colour all sofas tables and loose furniture items in white keep the overall rendering clean and consistent with the existing linework