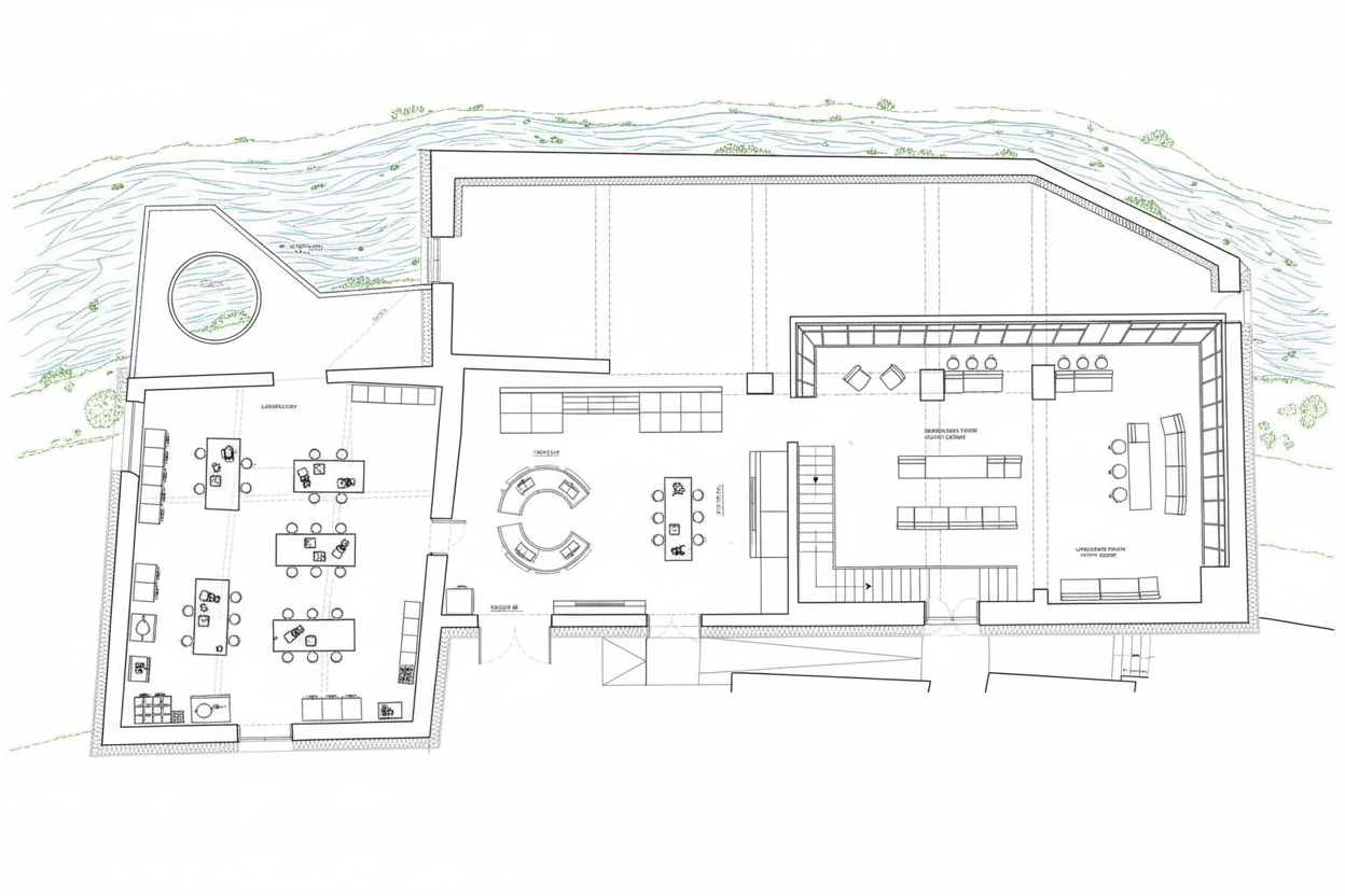
exterior shot make this into an ecological and environmental hub with a terrace off the small rectangular building that overlooks the river and has a cut out to look over the river below the larger room is divided in two the lower half with the two openings on one wall is a museum display area describing the local wildlife the other half at the top by the deck is sunken below ground with windows that look into the river underground and watch it flow by place furniture facing the windows for people to sit and view the water and animals inhabiting it finally in the small rectangle building make a labratory space for dissecting and discovering the environments intricacies make all of these furnishing black and white and autocad style design as an architectural plan uses these descriptions to make an architectural plan layout of the space make this an autocad plan not an imagery collage again make translate this into autocad plan make the river flow on the other side of the building and place the windows looking out to the river put the river overlook on an addition terrace built off the back of the small rechtangle building keep the river flow exactly like this extend the overlook terrace over the river further and have a cut out to look down into the water make the furniture more interesting and intentionally placed get rid of the bump out displays and put them inside the building i love it put the sunken portion of the building and the furniture and windows closer to the water fill out the rest of the space make the space where the stairs are now an exhibition architecture