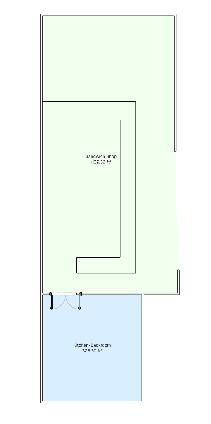
convert this floor plan into a realistic isometric 3d view of a full house show the space from an elevated angle with furniture walls and details visible furnish this sandwich shop to look and feel like a sandwich shop the block in the middle of the plan is meant to be a counter where they make the sandwiches and prepare food as well as cash customers out furnish the kitchen area to be like a kitchen backroom of a sandwich shop follow the tags strictly light white and cream materials for the walls and floors accents of cyan yellow and magenta cube shaped furniture and style use the same furniture as shows on the plan do not change the orientation of the floorplan