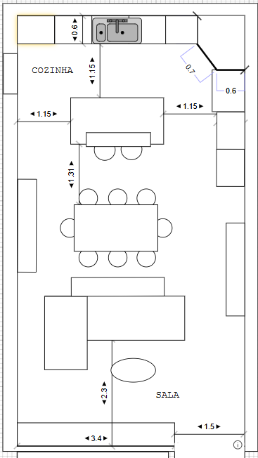
convert this floor plan into a realistic isometric 3d view of a full house show the space from an elevated angle with furniture walls and details visible dark beige wooden pannels for the floors and white walls dark wood cabinets for the kitchen and white stone some lamps spread around the space use the same furniture as shows on the plan do not change the orientation of the floorplan