archsynth
Sign Up
Open main menu
Image to 3d model
Compare
Testimonials
Contact us
Log in
→
Signup
Archsynth generation
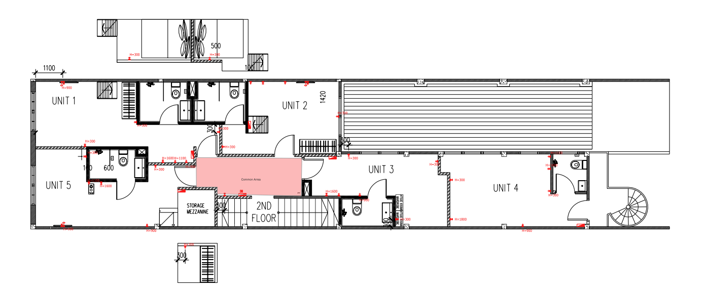
Input image
Copy Prompt
can you create a 3d floor plan the common area will be using a black mosaic all the rooms will be using honey coloured timber plank tiles the part where there are many horizontal lines is a flat metal roofing
Maintain Colors (v2)
strength 75
seed 10
Start Creating Renders Now
Related Posts
Start Creating Renders Now
View more