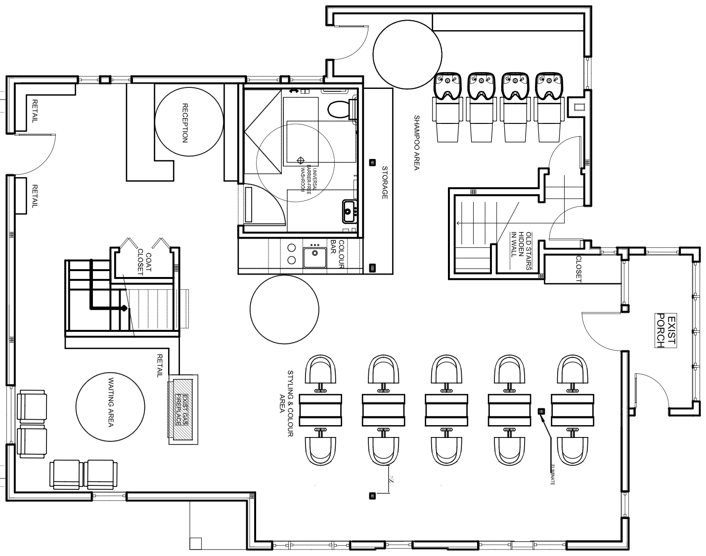
convert this floor plan into a realistic isometric 3d view of a full house show the space from an elevated angle with furniture walls and details visible layout zones to include 1 reception waiting area front left custom reception desk with dual height design raised transaction counter at front lower working desk behind flanking drawer banks on both sides no upper cabinetry integrated open retail shelving wall with built in display niches feature shelving tied into a fireplace element 2 styling area center open space multiple styling chairs arranged in a row with mirrors keep area open and uncluttered no upper cabinetry 3 shampoo area rear right lower cabinetry with quartz countertops open shelving above for product storage additional open shelving behind shampoo chairs cabinetry designed to conceal structural posts where required 4 colour bar station full cabinetry wall lower cabinets with drawers and doors upper cabinets for storage integrated sink within quartz countertop clean highly functional workstation aesthetic 5 washroom floating vanity with quartz countertop undermount sink minimalist barrier free design cabinetry specifications throughout painted shaker style doors birch veneer interiors dovetail drawers with concealed soft close runners crown moulding light valance and toe kicks where appropriate integrated hardware in brushed brass or matte black ceiling height context cabinetry height approx 108 maintain realistic vertical proportions rendering requirements true isometric perspective not perspective view show full floor layout clearly clean shadows soft lighting no people highly accurate spatial relationships the overall design ascetic of every space should be a contemporary modern design with a minimalistic mindset the colour scheme should be all neutrals and be very classy and high end strictly follow the provided floor plan layout and proportions do not redesign use the same furniture as shows on the plan do not change the orientation of the floorplan