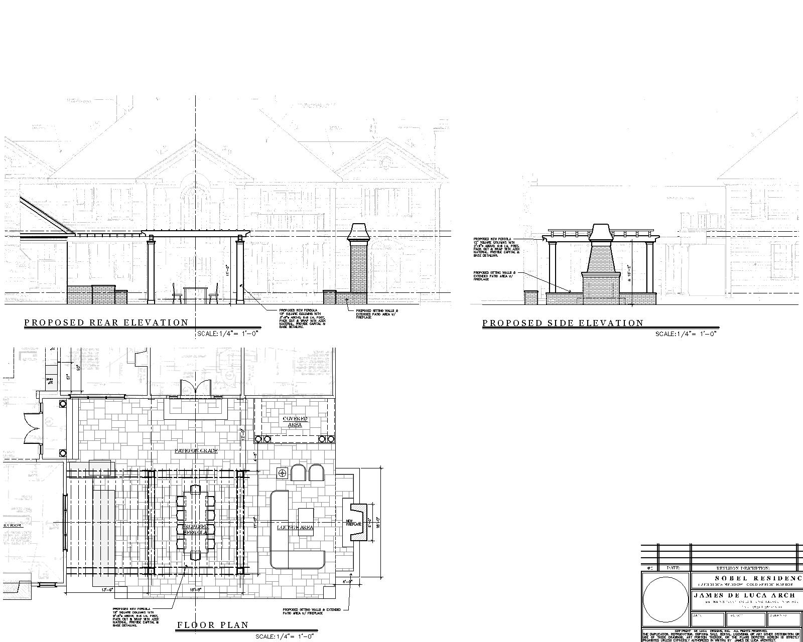
convert this floor plan into a realistic isometric 3d view of a full house show the space from an elevated angle with furniture walls and details visible show this proposed white pergola and brick fireplace white house siding asphalt shingle house roof use the same furniture as shows on the plan do not change the orientation of the floorplan