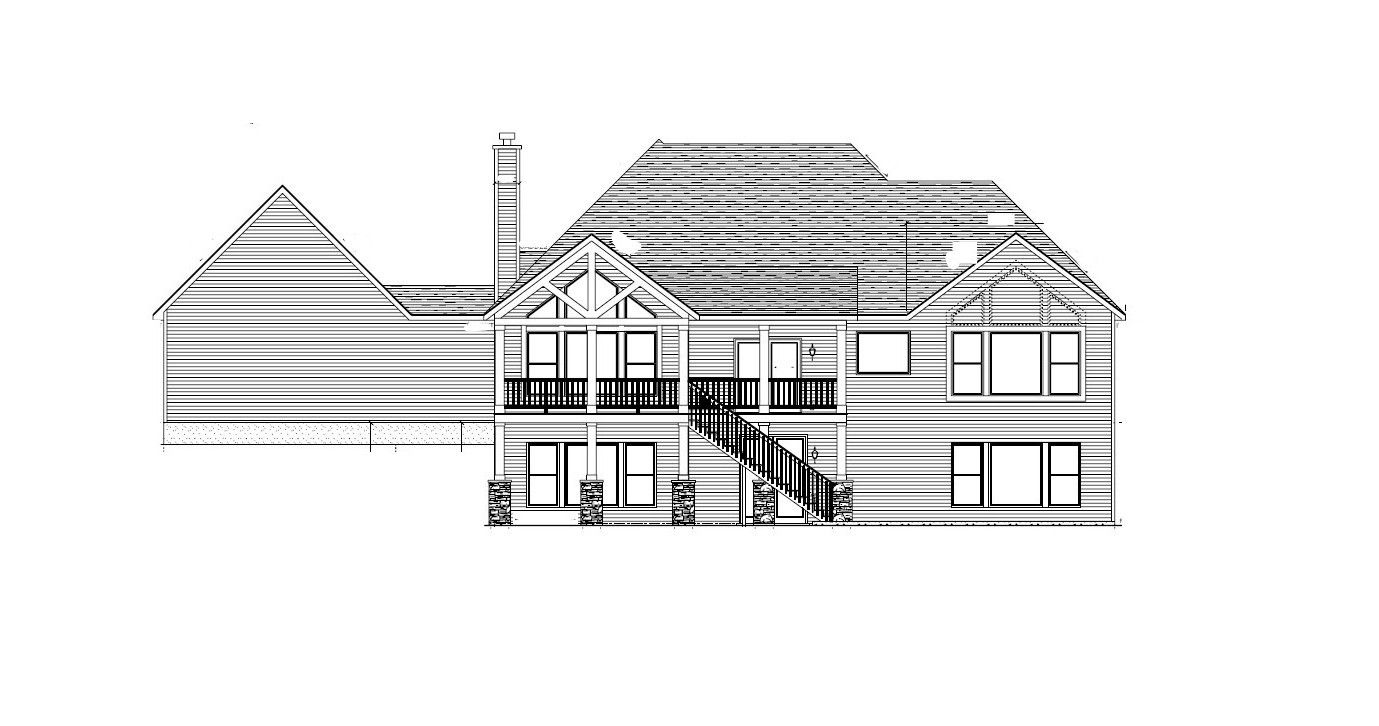
make as photorealistic as possible while keeping textures the same as shown light professional landscaping in greensboro nc 1 pm remove any text use the following finishes siding 7e9d9d black windows black window trim where shown black roof black soffit and fascia 8b5e2a posts and rails and brackets