archsynth
Sign Up
Open main menu
Image to 3d model
Compare
Testimonials
Contact us
Log in
→
Signup
Archsynth generation
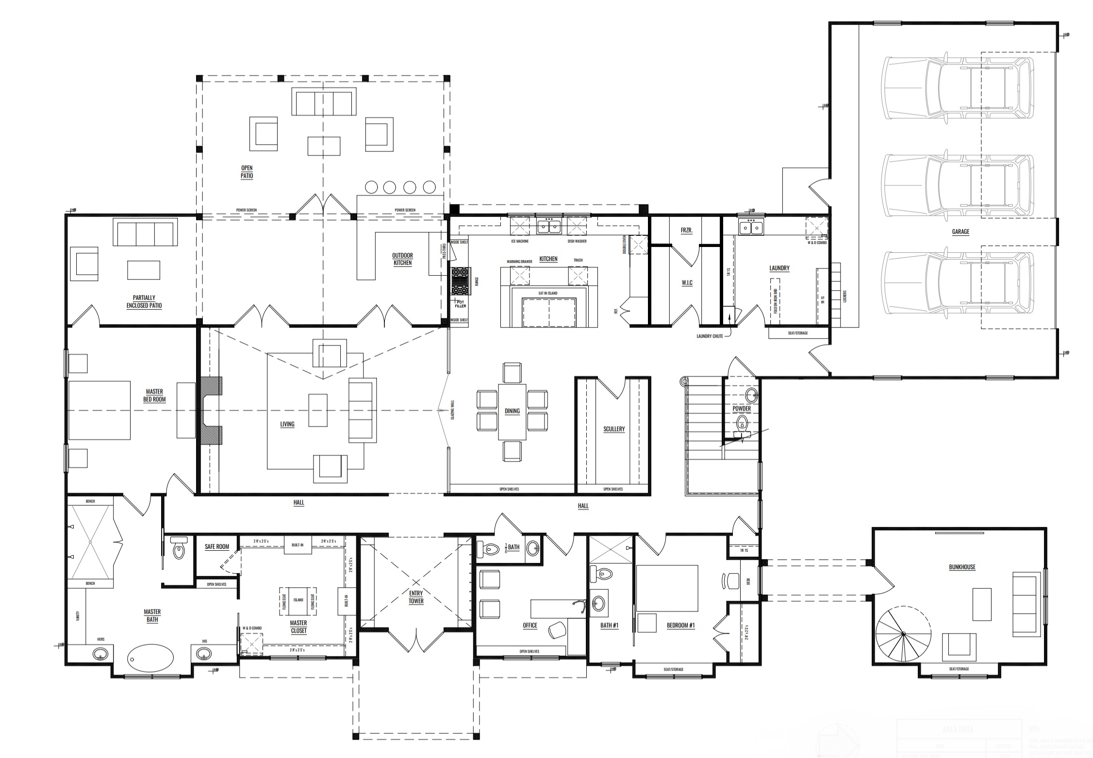
Input image
Copy Prompt
render the floor plan with color to collect spaces show shadows and people in the space some materials architecture
Boosted Render
strength 75
seed 4299
Start Creating Renders Now
Related Posts
Start Creating Renders Now
View more