archsynth
Sign Up
Open main menu
Image to 3d model
Compare
Testimonials
Contact us
Log in
→
Signup
Archsynth generation
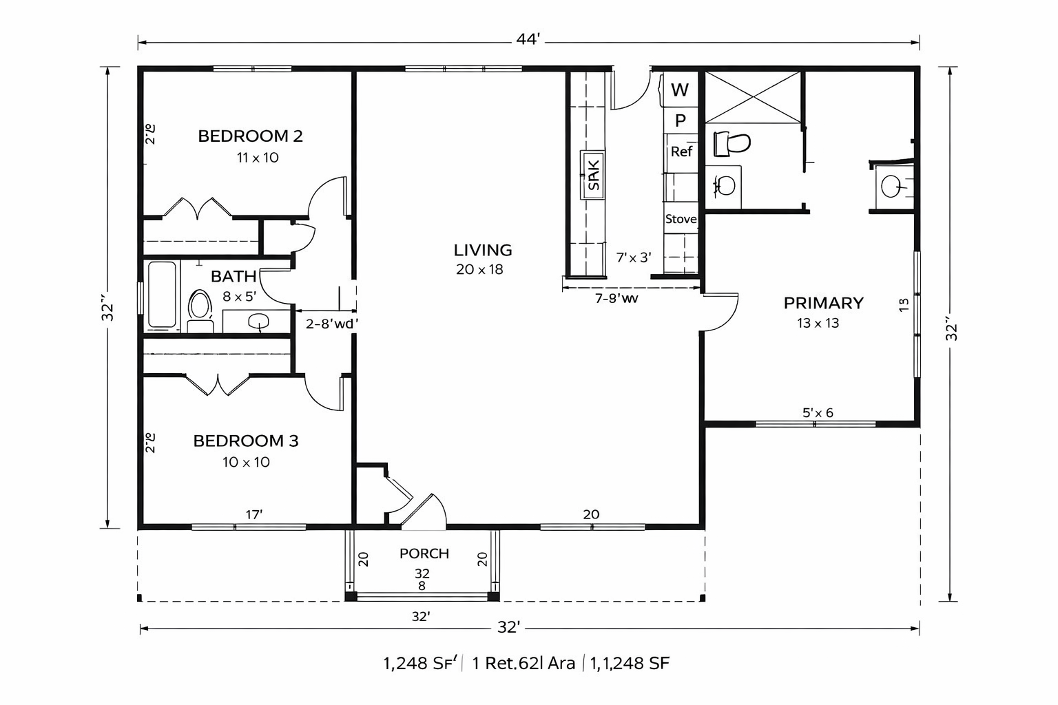
Input image
Copy Prompt
turn this simple sketch into a proportional presentation floor plan use properly scaled symbols for toilets bathtubs showered sinks stoves and refrigerators clean up line weights and proportions
Maintain Colors (Precision)
strength 75
seed 10
Start Creating Renders Now
Related Posts
Start Creating Renders Now
View more