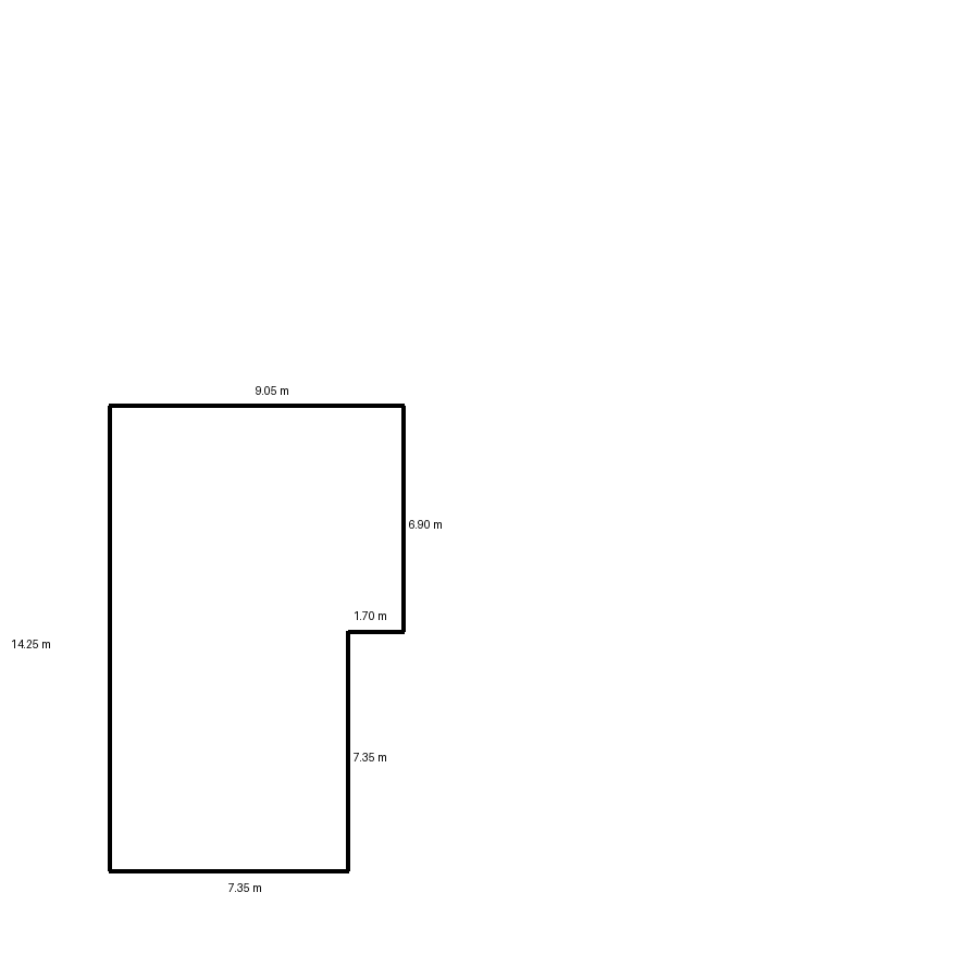
strict architectural floor plan maintain exact dimensions and proportions outer dimensions must be left side 14 25 m top side 9 05 m right upper side 6 90 m not 8 00 m inner inset 1 70 m inner vertical side 7 35 m bottom side 7 35 m keep exact l shaped geometry do not change proportions top down 2d blueprint flat drawing no perspective no 3d clean black lines accurate walls doors and windows do not approximate dimensions use exact measurements