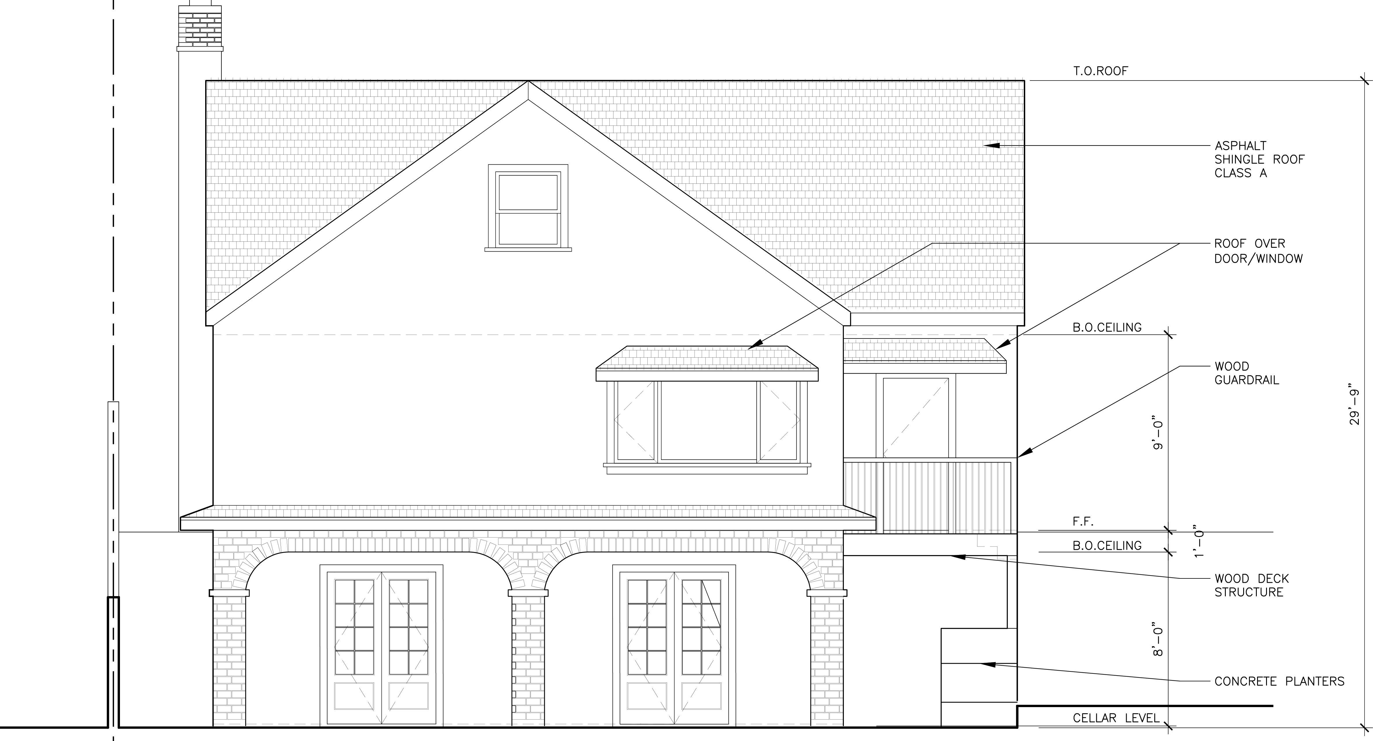
this is a backyard view of a house on a hillside where the back of the house is lower than the street level by 7 feet the roof is redish brown asphalt shingles warm white stuco walls warm brick arches are in front of the wall making for a small patio space beyond the bring arches windows are sage green colored frames there is a wood deck on the right side with a wood guardrail and planters below the yard should have california native plants and flowers with a bouganvia growing next to the house architecture