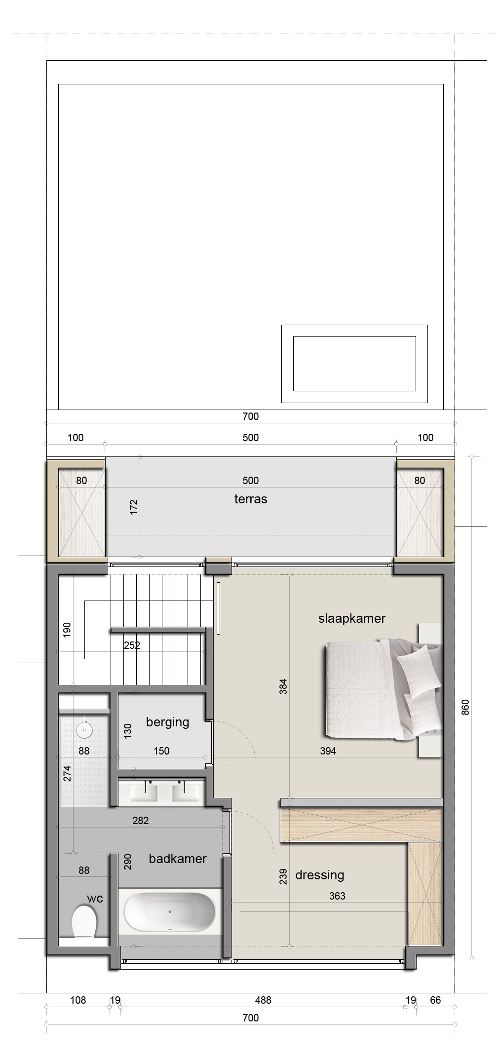
convert this floor plan into a realistic isometric 3d view of a full house show the space from an elevated angle with furniture walls and details visible analyze the provided floor plan walls are shown has white all windows are started from ground level generate the provided auto cad style 2d residential floor plan into a high quality top down 3d isometric true 90 orthographic architectural photorealistic rendering floor plan keeping the exact same dimensions proportions walls doors windows and furniture placement as shown do not change layout scale or orientation flooring light square tile 60cm style interior modern japanese japan with a soft neutral color palette of beige cream and light wood tones light natura warm neutral tones beige off white soft grey minimalist furniture clean lines built in cabinetry stone or microcement surfaces matte black accents furnish the existing rooms in a modern aesthetic elegant interior light soft ambient interior lighting and soft natural daylight with subtle shadows architectural visualisation distortion no added or removed elements keep the tops of the walls cleanly cut and white to show the layout clearly no extra furniture no changes to setup furniture no extension of terras terras only between 2 outside closets no open windows outside use the same furniture as shows on the plan do not change the orientation of the floorplan