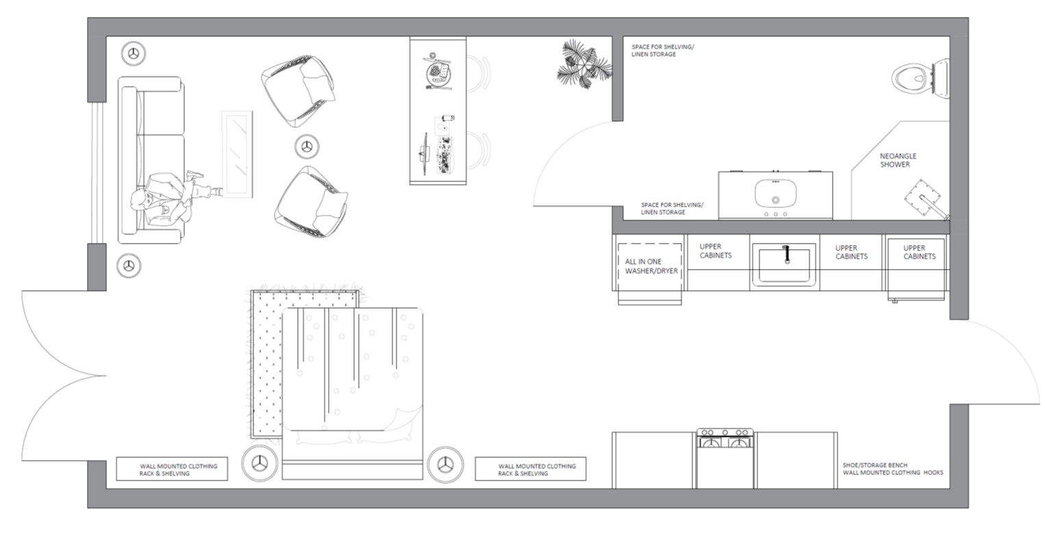
convert this floor plan into a realistic isometric 3d view of a full house show the space from an elevated angle with furniture walls and details visible a cozy rustic cabin with a curved corrugated metal roof and wooden slats in shades of warm greys and earth tones set against a subtle misty dawn sky with soft blues the cabin s door is white with clear glass surrounded by a serene natural landscape featuring hints of green foliage the atmosphere is calm and inviting bathed in the gentle glow of early morning light use the same furniture as shows on the plan do not change the orientation of the floorplan