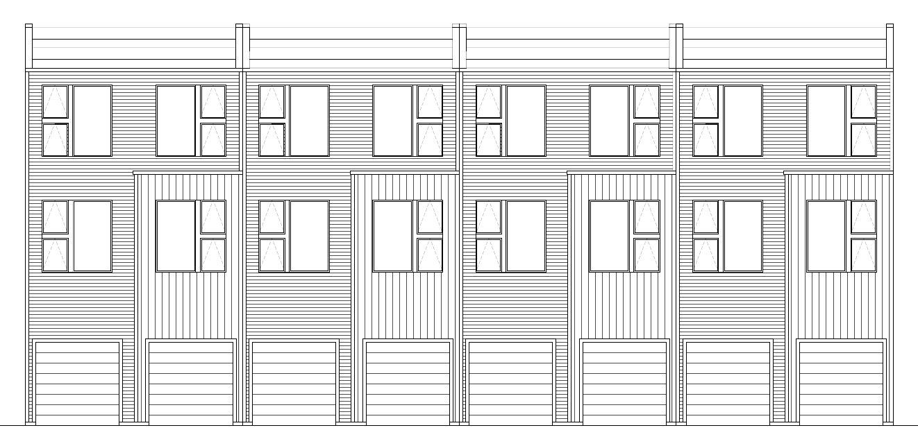
this elevation shows 4 adjacent townhomes please render all townhomes to match each other the primary cladding is lapped charcoal gray siding the rectangular portions of the facade that project out should be rendered with white board batten all trim and window frames to be black