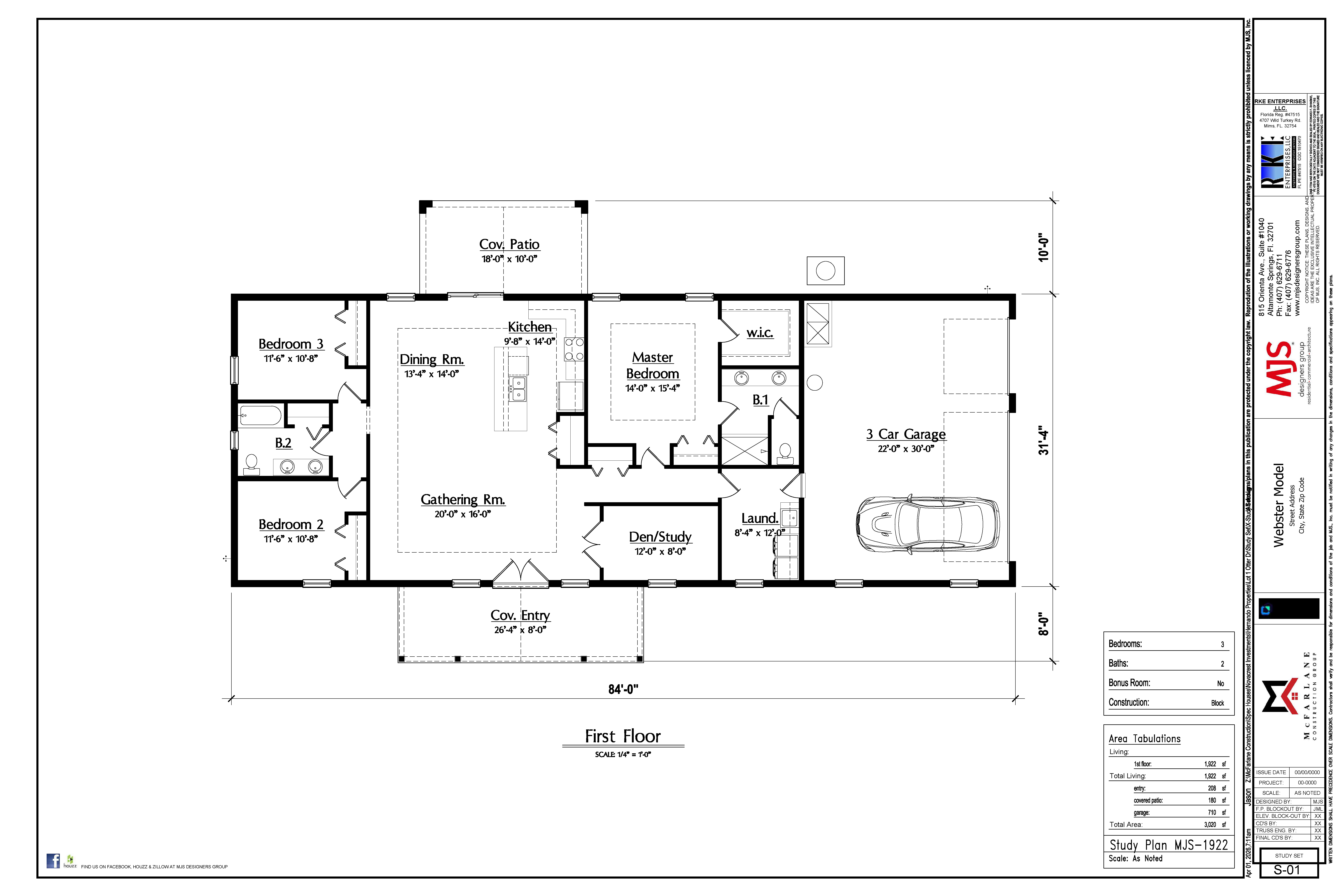
creat floor plan rendered image