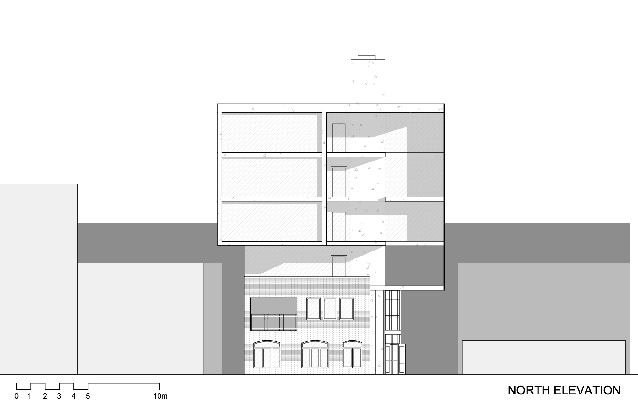
render this architectural elevation into a refined realistic yet conceptual visualization focus on the central building only the lower portion should be red brick with subtle texture clear window frames and soft daylight shadowing the upper massing should be expressed as floating glass volumes with a light cement concrete material for all beams frames and structural joints clean minimal and contemporary add soft interior reflections on the glazing and gentle light gradients to give depth surrounding buildings should appear only as simplified outlines or muted monochrome masses to reinforce the urban density without distracting from the main design use bright diffuse daylight with crisp but soft shadows maintain the drawing s proportions the final style should feel like a studio presentation render calm elegant and visually disciplined