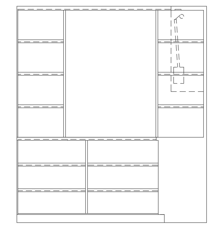
primary bedroom walk in closet elevation with adjustable led light strips on shelving and kick board shelving to be honey maple finish and back walls to look like linen wrapped panels center open space is a wall mirror no drawers and right side is a return of hanging rod space show lighted recessed kick area on base