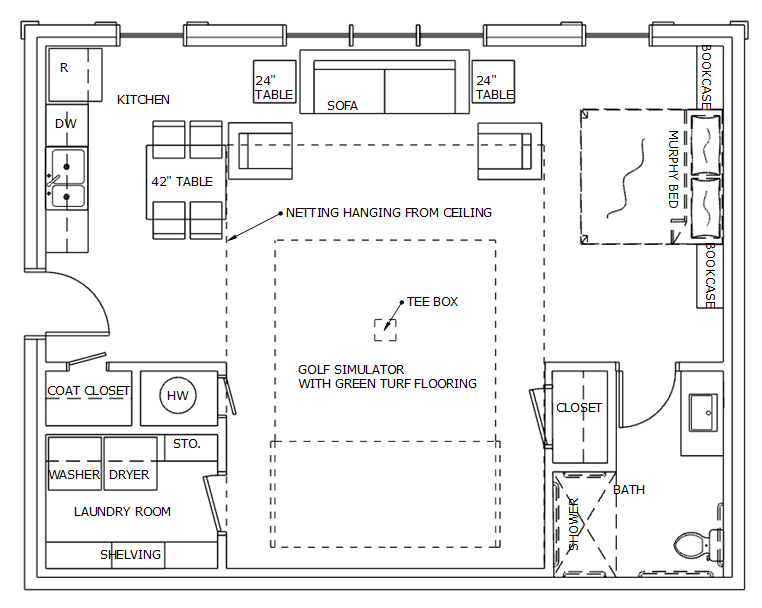
create a shaded aerial view of the floor plan in warm neutrals with green turf flooring inside golf simulator box only and medium hardwood floors throughtout the rest of the space white sofa and chairs with colorful print fabric on toss pillows 42 white wood table with four upholstered chairs murphy bed is white king bed