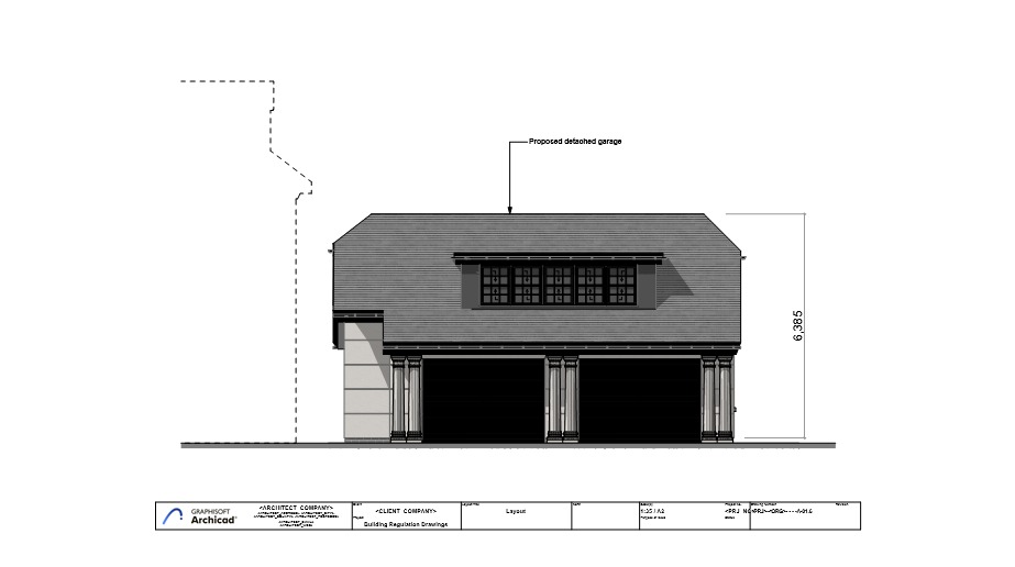
make the walls in render no brickwork add the shadow banding as per the original image make the window frames black and folding glass garage doors make all fascias and soffits black