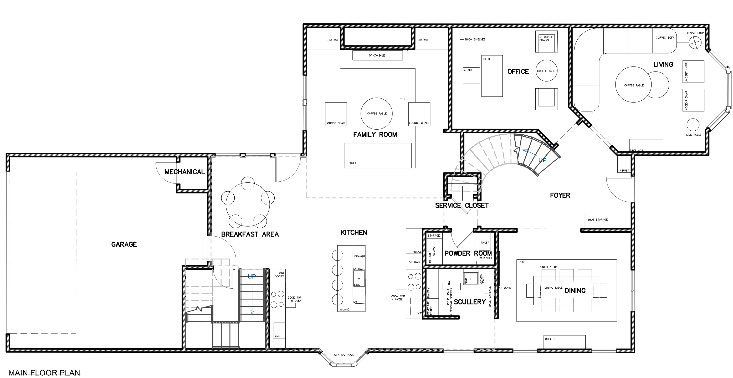
interior from the top architectural rendered floor plan top view maintain original layout keep walls and room shapes exactly the same modern residential interior soft neutral colors wood flooring texture clean furniture layout soft shadows architectural presentation style minimal and realistic architecture