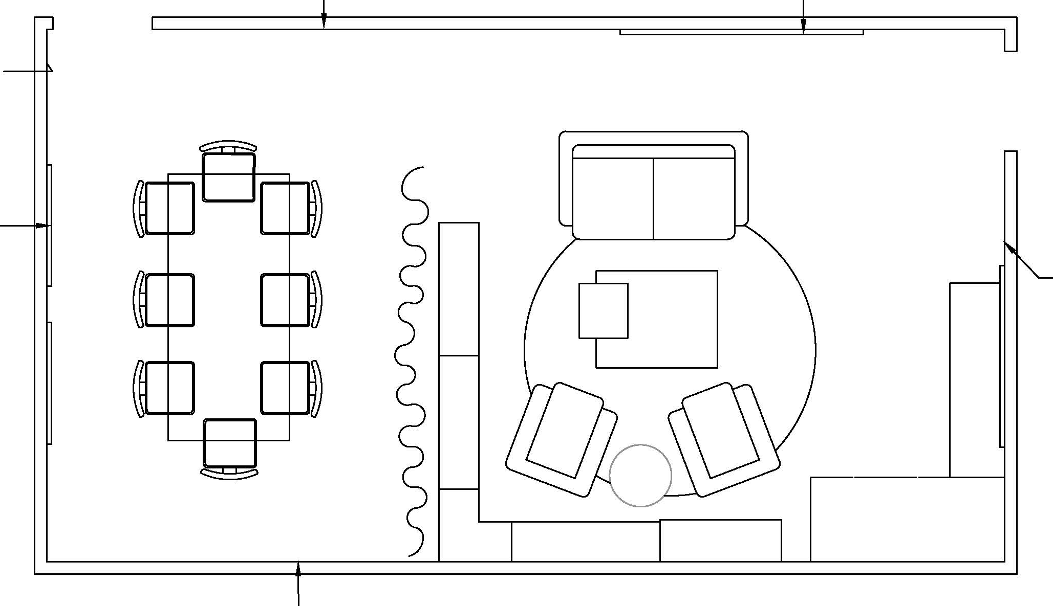
interior shot use the floor plan and add the images form teh mood board to create a psychologists office where it is divided into two areas one for consulting with a desk and couch and occasional chairs teh second area is an art area with teh dining table and chairs a curtain in grey velvet separates the two areas