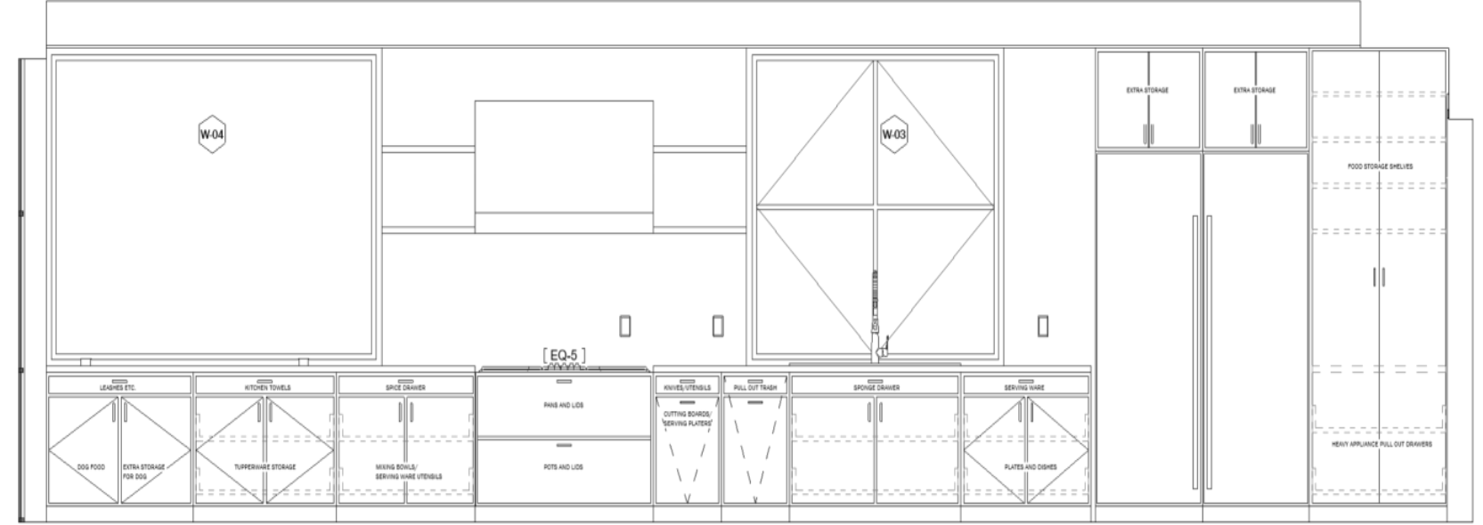
modern mediterranean matte raw walnut cabinetry taupe quartz stone countertops tiled backsplash plastered hood open oak shelves by hood panel ready in matte walnut gun metal plumbing fixtures windows have black trim