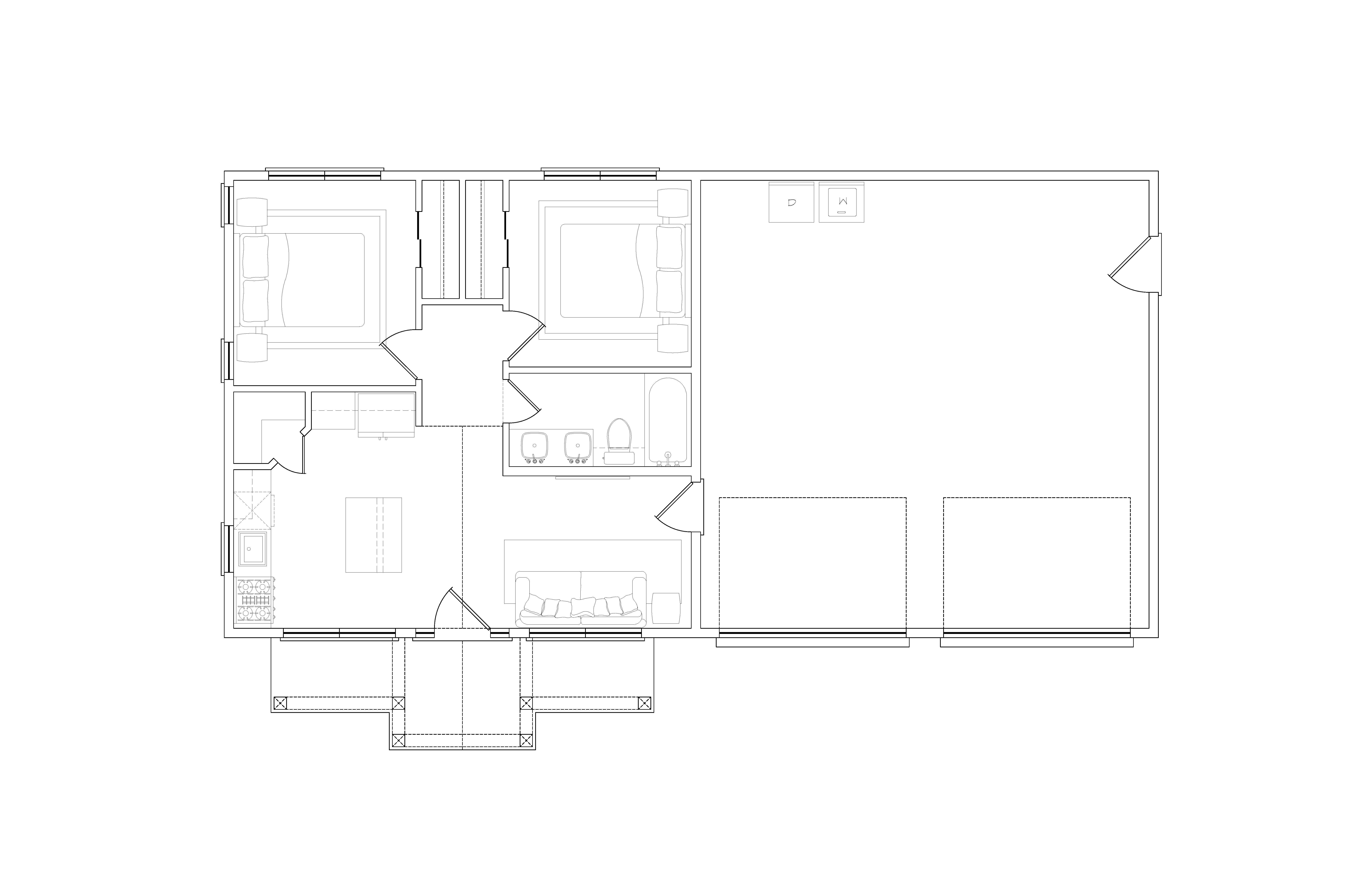
convert this floor plan into a realistic isometric 3d view of a full house show the space from an elevated angle with furniture walls and details visible you are a professional image renderer you create the highest grade renderings around and specialize in architectural renderings this is the floor plan of a house create a marketing floor plan that showcases this home design keep the windows as they are where they are keep the doors as they are where they are keep the main structure as it is where it is feel free to change the perspective do not add anything to the structure or furnishings that i have not asked for front porch is concrete concrete driveway leading to garage doors keep all furniture where it is no sink or range at island use the same furniture as shows on the plan do not change the orientation of the floorplan