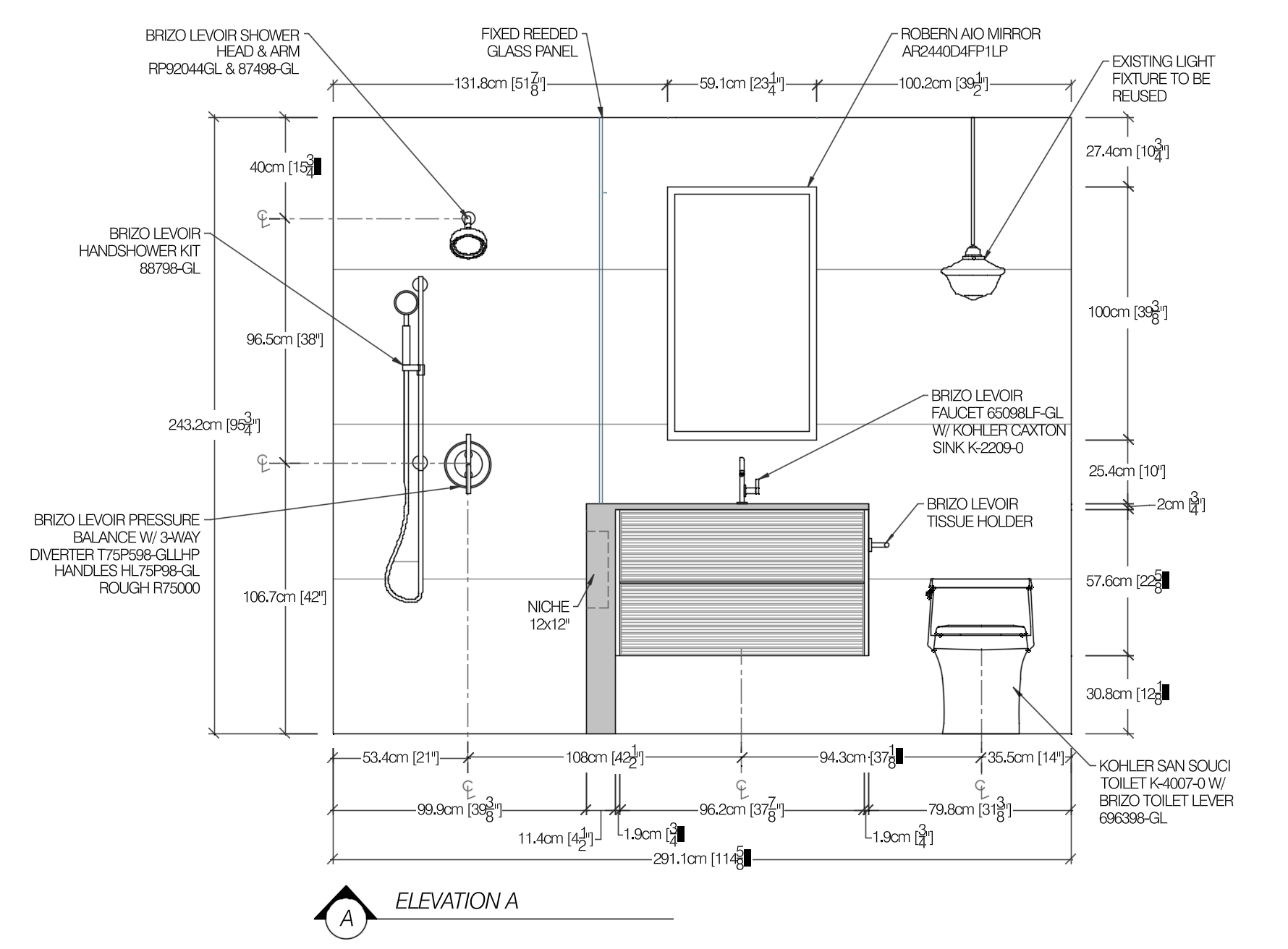
calacatta gold tile on walls shower fixtures in brushed gold vanity cabinet in natural walnut