archsynth
Sign Up
Open main menu
Image to 3d model
Compare
Testimonials
Contact us
Log in
→
Signup
Archsynth generation
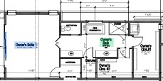
Input image
Copy Prompt
the 3 d model you mad is completely wrong please read and interpret the exact items in each room and render the room to follow these items only
3rd Party Models
strength 75
seed 10
Start Creating Renders Now
Related Posts
Start Creating Renders Now
View more