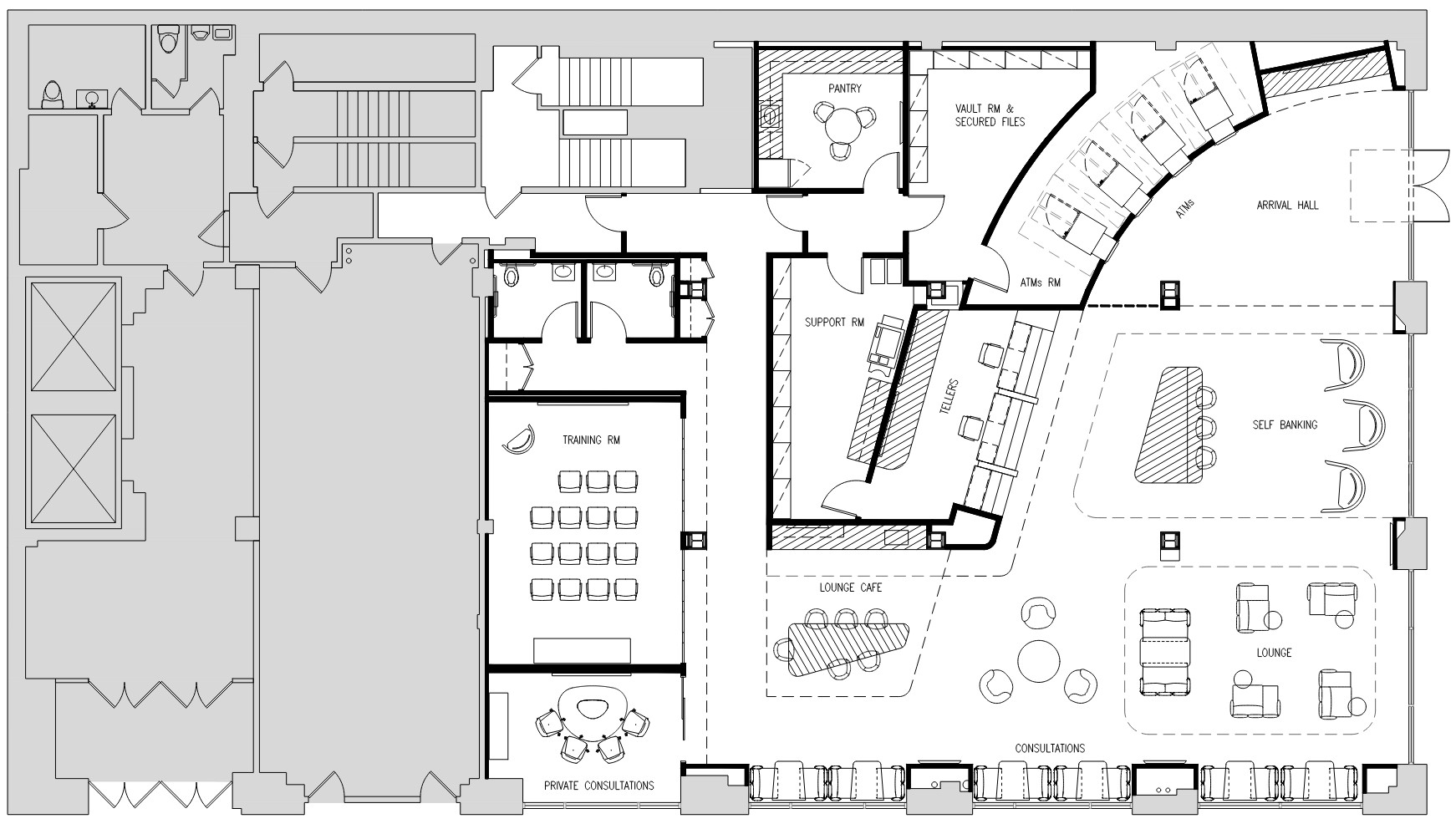
create and 60 degree axonometric photorealistic rendering of the attached architectural plan the view angle should be looking from the bottom right corner of the floor plan add wood flooring finish throughout with the exception of the restrooms and pantry areas