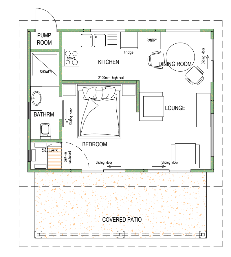
a modern concrete bushveld lodge bronze aluminium sliding doors and a polished concrete floor timber columns on the patio