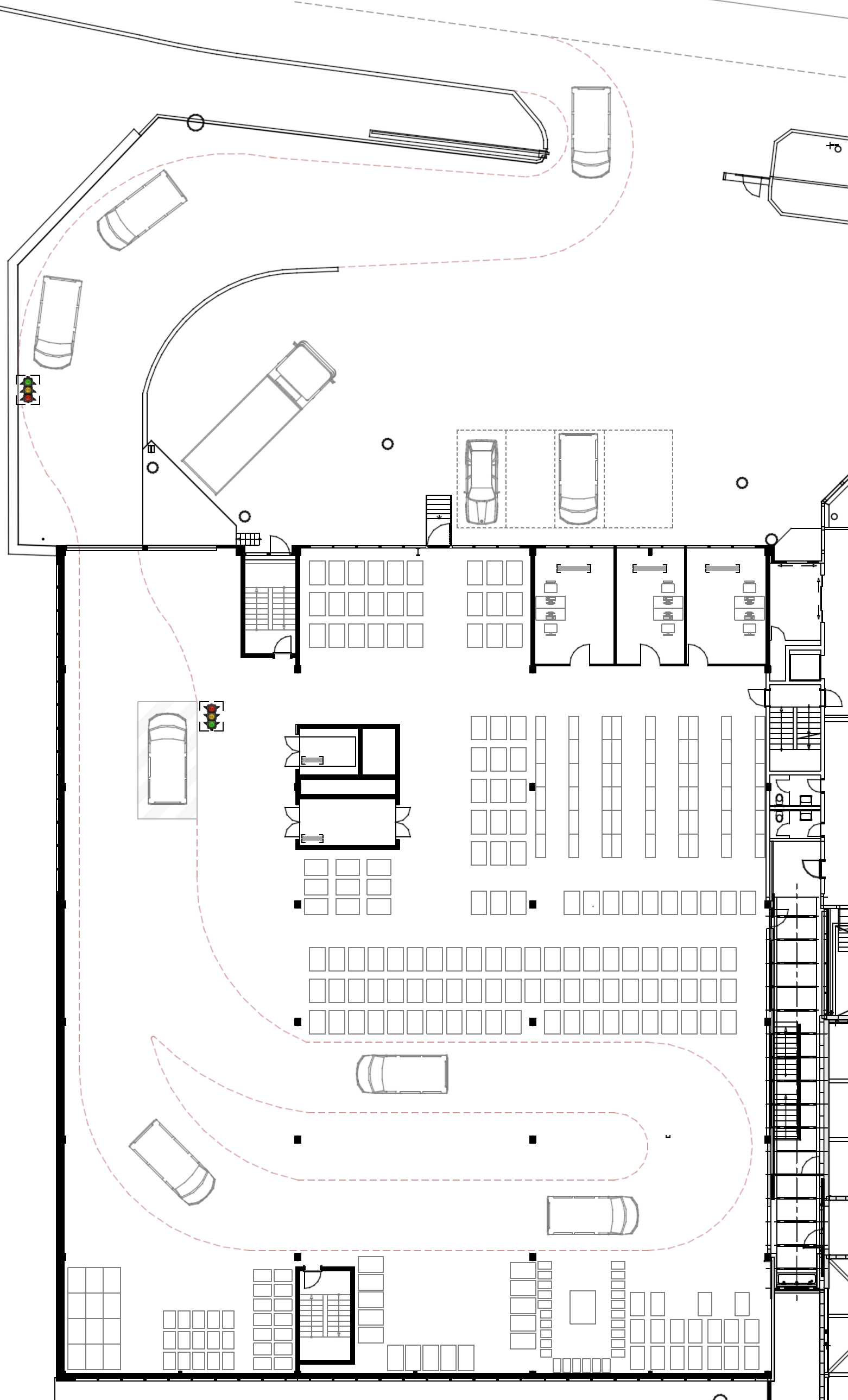
transforme ce plan en une maquette 3d vue de dessus r aliste il s agit d un entrep t de stockage avec diff rence palettes de marchandises des caisses les camionnettes peuvent rentrer dans la zone selon une circulation d fini les ouvriers transportent l aide de transpalette des diverses marchandises pour les charger ou les stocker en utilisant les montes charges