archsynth
Sign Up
Open main menu
Image to 3d model
Compare
Testimonials
Contact us
Log in
→
Signup
Archsynth generation
Input image
Copy Prompt
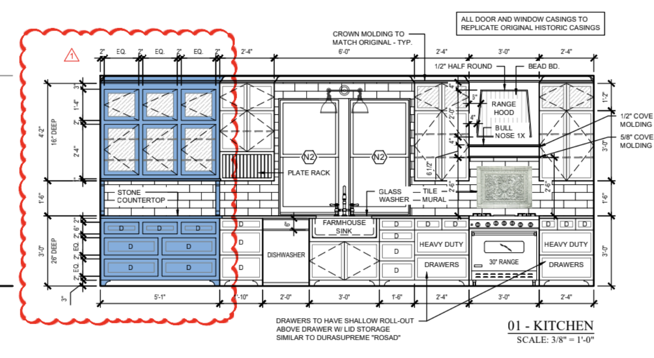
the main cabinet color is origami white with the cabinets highlighted in blue are stained fruitwood by duraseal the cabinet hardware is chrome and the backsplash color is a light blue
Maintain Colors (v2)
strength 75
seed 10
Start Creating Renders Now
Related Posts
Start Creating Renders Now
View more