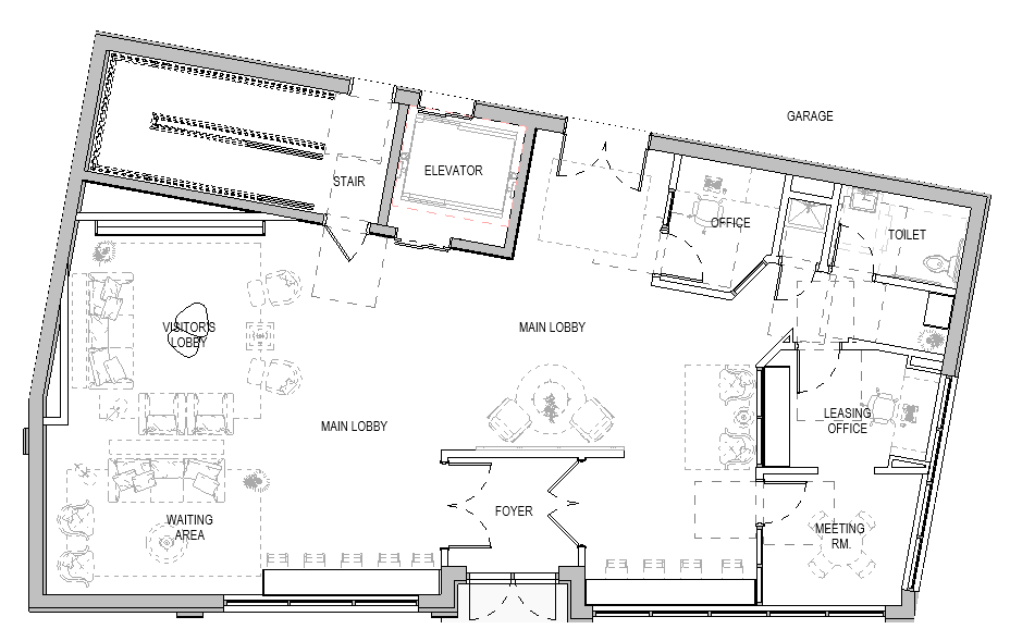
render this fine apartment lobby area