archsynth
Sign Up
Open main menu
Image to 3d model
Compare
Testimonials
Contact us
Log in
→
Signup
Archsynth generation
Input image
Copy Prompt
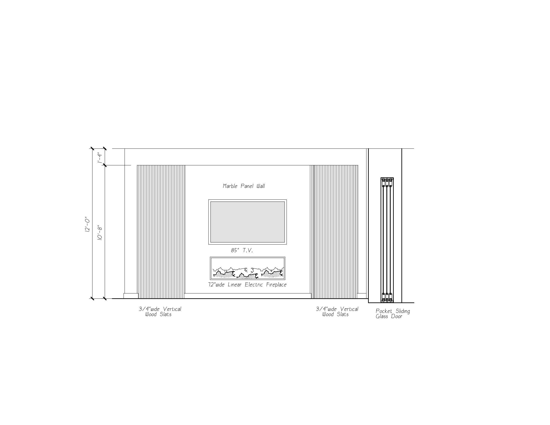
modern feature wall with dark brown vertical wood center wall to be marble panel finish electric fire place flat screen tv with beach scene
Elevations
strength 100
seed 10
Start Creating Renders Now
Related Posts
Start Creating Renders Now
View more