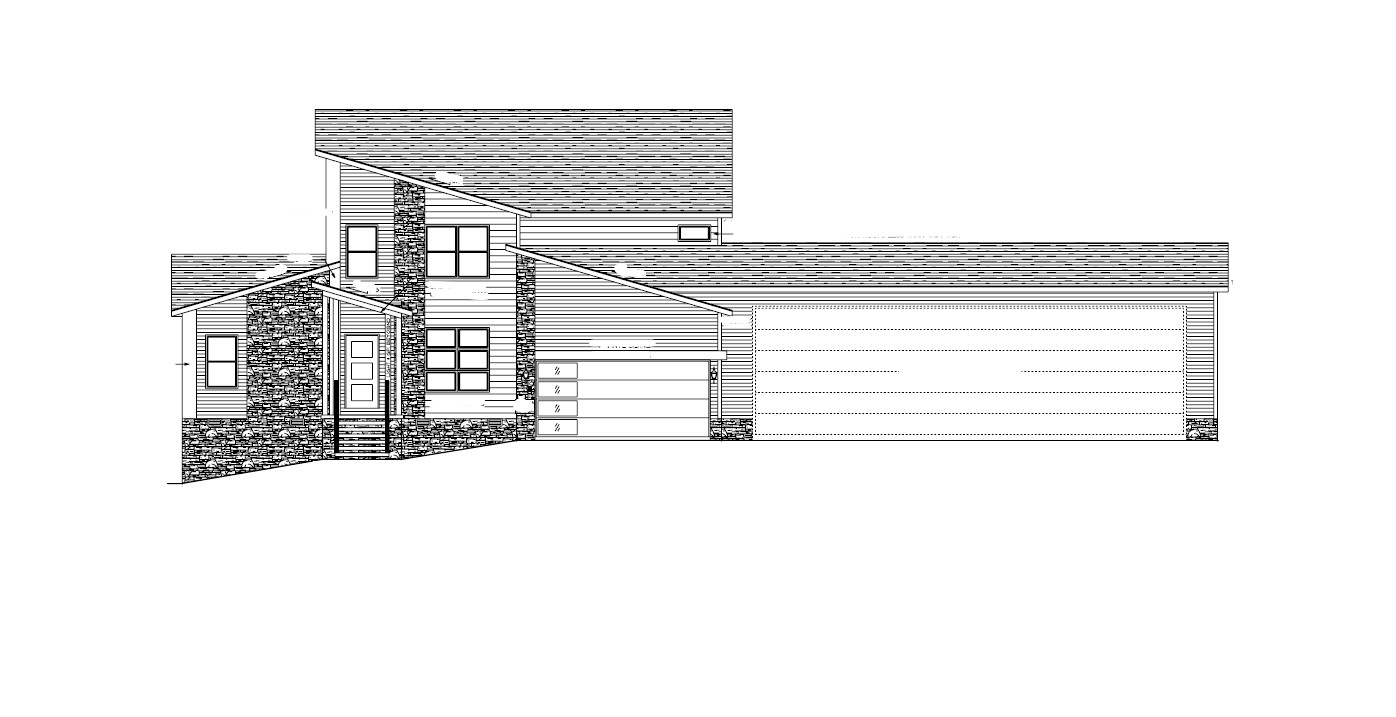
make a straight on front elevation photorealistic as possible while keeping textures the same as shown lightly landscaped in a lightly wooded suburb of north carolina nice lighting remove any text use the following finishes bfbdc3 7 lap siding where shown 4f524f 4 lap siding where shown black windows steinhause stack ledge stone black certainteed dimensional shingles with black soffit fascia and gutters 8b3636 three panel front door 2d2c2e posts