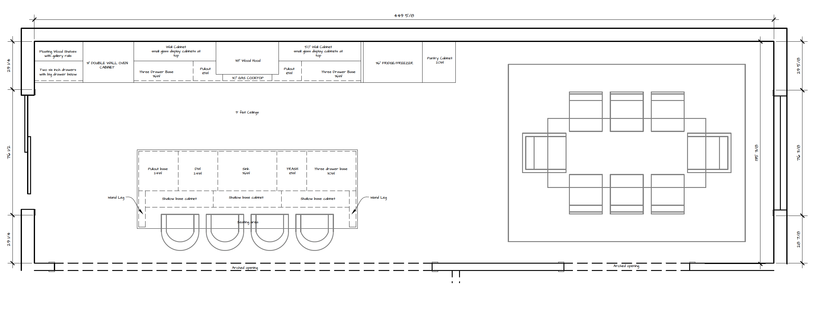
convert this floor plan into a realistic isometric 3d view of a full house show the space from an elevated angle with furniture walls and details visible make this isometric into a tradtional kitchen and dining space follow notes provided on drawing for cabinet layout use the same furniture as shows on the plan do not change the orientation of the floorplan